Wohnen und arbeiten abseits des Trubels der Großstadt
Historisches Herrenhaus mit großem Wintergarten
Objektnummer: 1874
300 m2
Wohnfläche
2.500 m2
Grundstück
1
Wohneinheiten
390.000 EUR
Kaufpreis
Objektbeschreibung
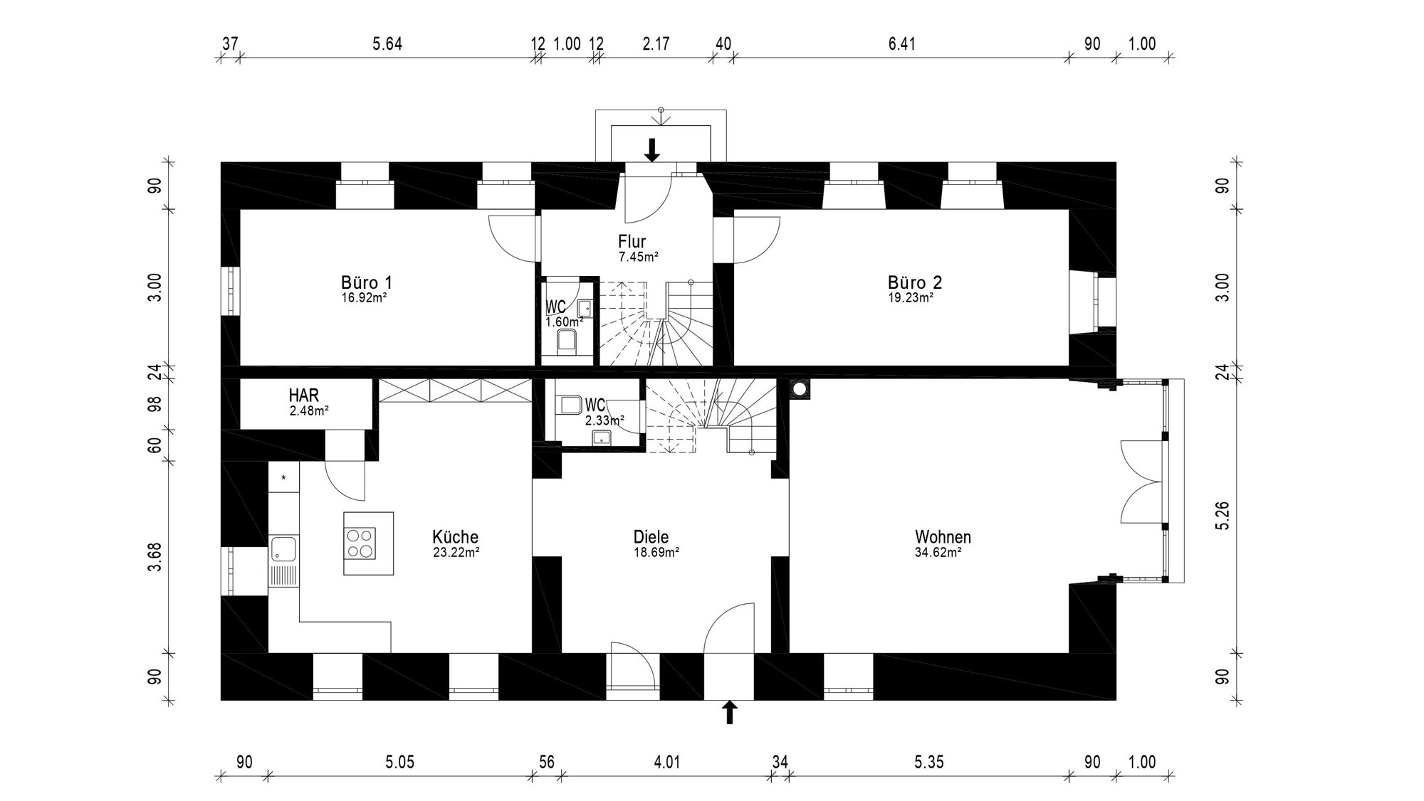
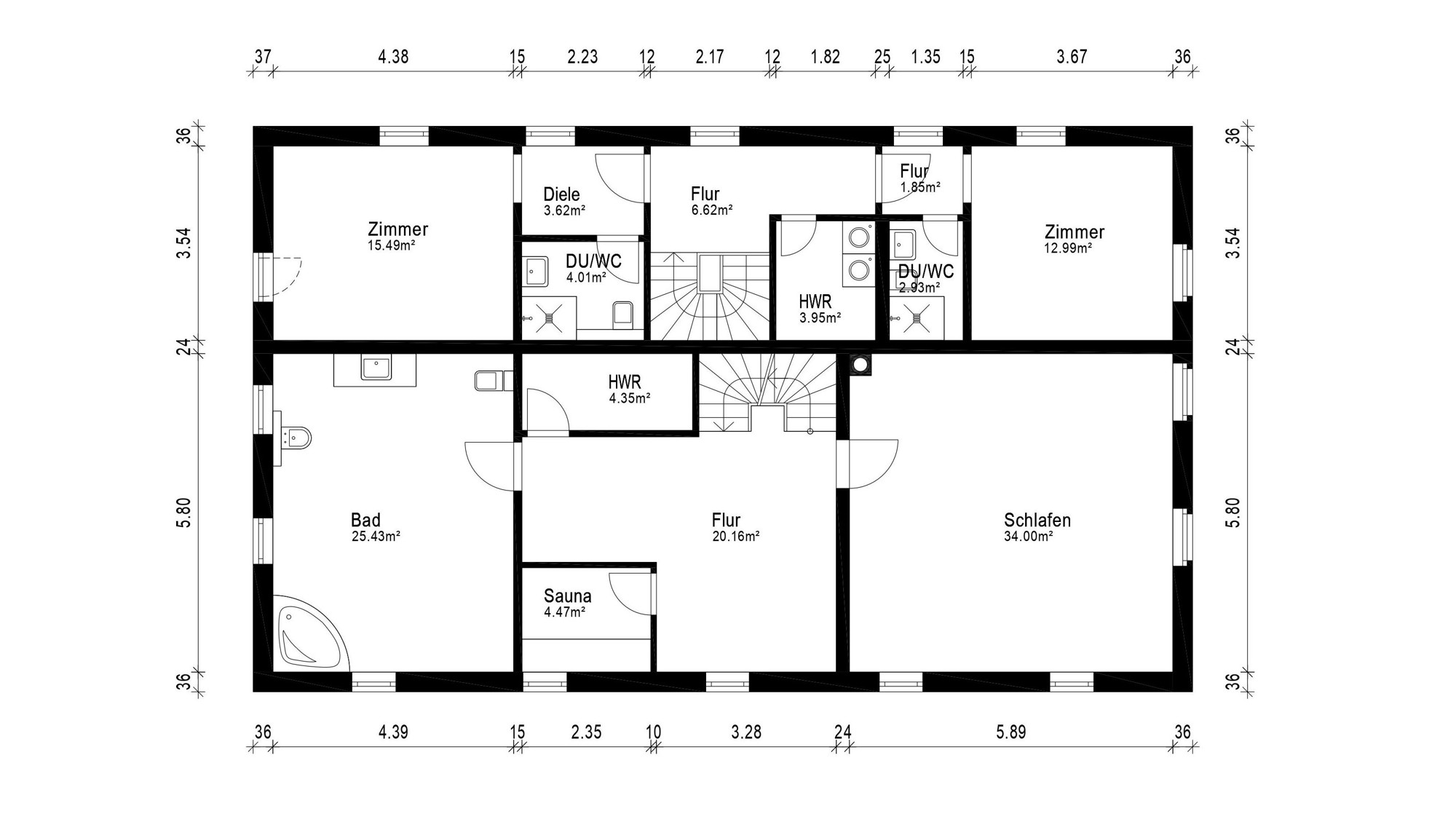
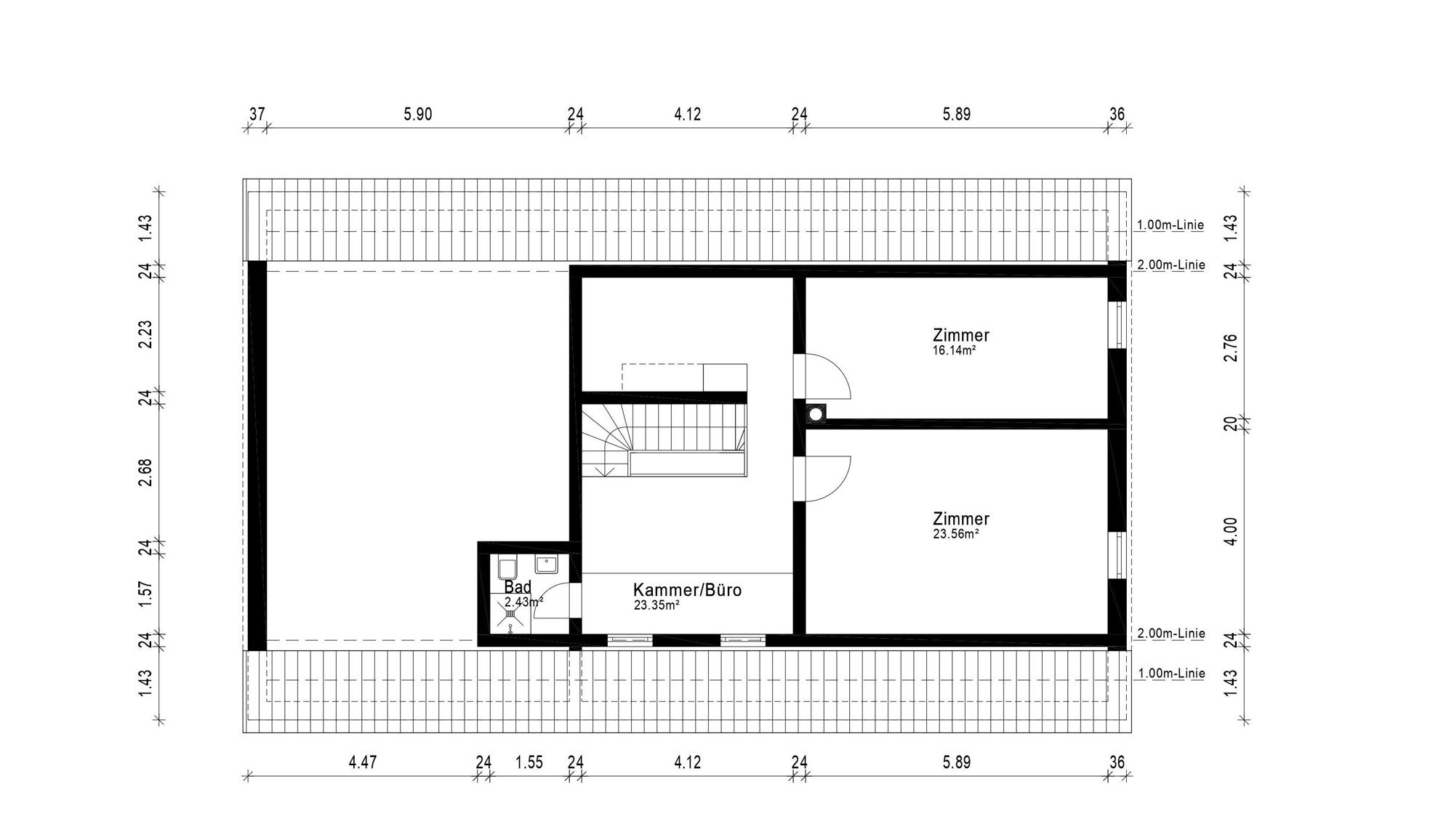
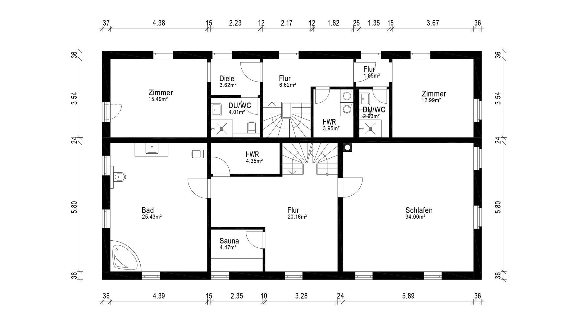
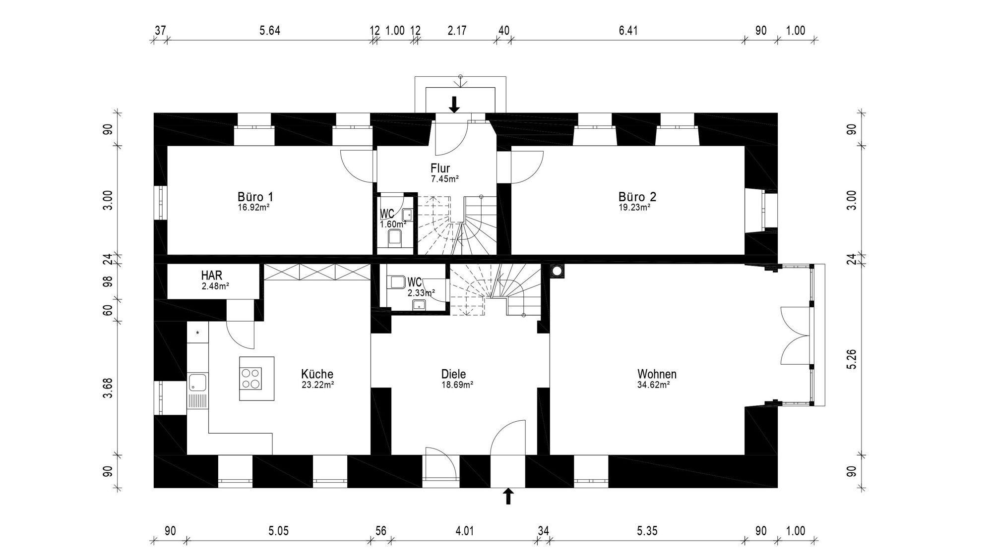
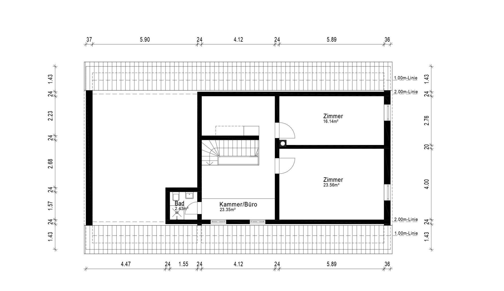
Dieses im Jahr 1900 erbaute Juwel besticht nicht nur durch seine historische Bedeutung, sondern auch durch seine moderne Ausstattung und den Komfort, den es Ihnen bietet. Das massiv gebaute Haus erstreckt sich über vier Etagen und bietet eine großzügige Wohnfläche von 300,00 m².
Mit insgesamt sieben Zimmern, darunter drei geräumige Schlafzimmer, bietet dieses Haus genügend Platz für die ganze Familie. Ein stilvoll gestaltetes Badezimmer steht Ihnen zur Verfügung, welches zum Entspannen und Wohlfühlen einlädt.
Das Highlight dieses Hauses ist zweifellos der großzügige Wintergarten, der Ihnen das ganze Jahr über eine angenehme Atmosphäre bietet. Hier können Sie die Sonne genießen, während Sie den Blick auf Ihren wunderschön angelegten Garten genießen. Der Wintergarten ist der perfekte Ort, um sich zu entspannen und die Natur auch bei schlechtem Wetter zu genießen.
Eine weitere Besonderheit dieser Immobilie ist der Kamin, der nicht nur für eine gemütliche Atmosphäre sorgt, sondern auch für wohlige Wärme in den kalten Wintermonaten. Genießen Sie die kühlen Abende vor dem prasselnden Feuer und lassen Sie den Alltagsstress hinter sich. Für alle Wellnessliebhaber bietet dieses Haus eine eigene Sauna mit Tauchfass, in der Sie sich nach einem langen Tag entspannen und erholen können. Darüber hinaus verfügt die Immobilie über einen Whirlpool, in dem Sie sich verwöhnen lassen können.
Für Ihre Fahrzeuge steht eine Garage zur Verfügung, die Ihnen genügend Platz bietet. Darüber hinaus können Sie einen gepflegten Garten genießen und die warmen Sommerabende auf der Terrasse verbringen.
Im Fazit bietet diese Immobilie eine einzigartige Gelegenheit, ein historisches und denkmalgeschütztes Haus mit modernem Komfort zu erwerben. Der großzügige Wintergarten, der Kamin, die Sauna, der Whirlpool, die Garage und der Garten machen dieses Haus zu einem wahren Traumobjekt.
Eine Besichtigung des Hauses ist nach Absprache jederzeit möglich. Überzeugen Sie sich selbst von diesem einzigartigen Objekt und vereinbaren Sie noch heute einen Termin mit uns. Wir freuen uns darauf, Ihnen das Haus persönlich präsentieren zu dürfen.
Welche Folgen die Novelle des GEG (GebäudeEnergieGesetz) für Ihre Immobilie hat, erfahren Sie in unserem Blog: https://www.nachhause-immobilien.de/news/491-gebaeudeenergiegesetz-praxis-leipzig-marienbrunn. Kontaktieren Sie uns für eine umfassende Beratung und professionelle Unterstützung oder fragen Sie Ihren Schornsteinfeger.
Bei dem mit dem Herrenhaus bebauten Grundstück handelt es sich um ein mit mehreren gewerblich und wohnlich genutzten Gebäuden bebautes Grundstück, welches auch global zur Veräußerung steht. Gerne teilen wir Ihnen den Preis auf Anfrage mit, um sicherzustellen, dass wir Ihnen das bestmögliche Angebot machen können.
Auf dem Grundstück befinden sich die Keramikscheune, die Bauernschänke, der Gutsherrensaal, eine Lagerhalle und das in diesem Expose beschriebene Wohn- und Geschäftshaus.
Hat Ihnen unser Service gefallen? Wir von Nach Hause Immobilien freuen uns immer über Feedback. Veröffentlichen Sie doch eine Rezension auf unserer Homepage. https://www.nachhause-immobilien.de/#kundenstimmen.
Beschreibung der Lage
Die zum Verkauf stehende Immobilie liegt in Spickendorf, einem Ortsteil der Ortschaft und der Stadt Landsberg im Saalekreis in Sachsen-Anhalt. Wohnen abseits des Trubels der Großstadt. Hier im Landsberger Ortsteil Spickendorf lässt sich der Feierabend entspannt genießen. Spickendorf liegt südlich von Landsberg zwischen Halle (Saale) im Westen und Delitzsch im Osten in der Nähe der Landesgrenze zu Sachsen. Der Ort liegt am Strengbach, einem Zufluss der Fuhne. Durch die Nähe nach Leipzig und Halle entwickelt sich die Umgebung zu einem immer beliebter werdenden Wohn- und Lebensstandort.
Kurze Wege über die B100 nach Halle oder Bitterfeld und über die A14 in Richtung Leipzig bieten ideale Anbindungen. Ganz egal, ob Sie im The Style Outlets Halle Leipzig in Brehna ein paar Schnäppchen ergattern wollen, oder lieber einen Spaziergang durch das Rasenlabyrinth machen möchten, die ideale Lage ermöglicht Ihnen einige Freizeitaktivitäten.
Sollten Sie das Bedürfnis verspüren, sich an einem See in die Sonne zu legen, so können Sie innerhalb von 5 Minuten mit dem Fahrrad an die Sandgrube fahren oder das allseits bekannte und beliebte Felsenbad nutzen. Der Bus 351 bringt Sie in das nahegelegene Landsberg, wo sich die Kita, die Grundschule, die Oberschule und das Gymnasium sowie Ärzte und verschiedene Einkaufsmöglichkeiten befinden.
Rechtliches
Dieses Exposee ist eine Vorinformation. Die Angaben im Exposé dienen lediglich der allgemeinen Information und sind unverbindlich. Für die Richtigkeit und Vollständigkeit wird keine Haftung übernommen. Als Rechtsgrundlage gilt allein der notarielle Kaufvertrag.
Energiebedarf (EnEV 2014): Sollte Ihnen aktuell kein Energieausweis angezeigt werden, so wird spätestens bei der Besichtigung ein Energieausweis vorliegen. Handelt es sich bei dem Angebot um eine denkmalgeschützte Immobilie, ist diese von der Ausweispflicht ausgenommen. EnEV § 16, Absatz 5 S. 2 stellt Baudenkmäler ausdrücklich von der Verpflichtung zur Vorlage/Übergabe eines Energieausweises bei Verkauf und Vermietung frei. Handelt es sich bei dem Angebot um einen Neubau, erfolgt die Vorlage des Energieausweises durch die Bauherren unverzüglich nach Fertigstellung, da der Energieausweis die tatsächlichen energetischen Eigenschaften des fertiggestellten Gebäudes aufweisen muss.
Für die steuerlichen Konsequenzen aus der Entscheidung zum Kauf empfiehlt es sich, vor dem Abschluss eines Kaufvertrages einen Steuerberater des Vertrauens zu Rate zu ziehen. Mit diesem Angebotsprofil werden ausschließlich Auskünfte zu der angebotenen Immobilie erteilt. Seitens der Maklerin, Initiatorin, Prospektherausgeberin und oder Verkäuferin wird keine Rechts-, Steuer-, Finanzierungs-, Kapitalanlage- oder Wirtschaftsberatung erbracht.
Die in diesem Exposee ausgewiesene Maklerprovision inkl. der gesetzlichen Mehrwertsteuer auf den Kaufpreis ist mit dem Zustandekommen des Kaufvertrages (notarieller Vertragsabschluss) verdient und fällig. Die Vermittelnden und/oder Nachweisenden, Nach Hause Immobilien GmbH & Co. KG, erhalten einen unmittelbaren Zahlungsanspruch gegenüber dem Käufer (Vertrag zugunsten Dritter, § 328 BGB). Sollte das nachgewiesene Objekt innerhalb eines Jahres privat erworben werden, so ist die Maklergebühr ebenfalls in voller Höhe an die Nach Hause Immobilien GmbH & Co. KG zu zahlen. Die Höhe der Bruttocourtage unterliegt einer Anpassung bei Steuersatzänderung. Von einer späteren Vertragsauflösung bleibt unser Provisionsanspruch unberührt, sofern die Vertragsauflösung aus einem Grund erfolgte, den die Nach Hause Immobilien GmbH & Co. KG nicht zu vertreten hat. Wir haben mit dem Eigentümer einen provisionspflichtigen Vertrag in gleicher Höhe abgeschlossen.
Da wir Objektangaben nicht selbst ermitteln, übernehmen wir hierfür keine Gewähr. Alle Angaben basieren ausschließlich auf Informationen, die uns von unserem Auftraggeber zur Verfügung gestellt wurden. Dieses Exposee ist nur für Sie persönlich bestimmt. Eine Weitergabe an Dritte ist an unsere ausdrückliche Zustimmung gebunden und unterbindet nicht unseren Provisionsanspruch bei Zustandekommen eines Vertrages. Alle Gespräche sind über unser Büro zu führen. Bei Zuwiderhandlung behalten wir uns Schadenersatz bis zur Höhe der Provisionsansprüche ausdrücklich vor. Zwischenverkauf ist nicht ausgeschlossen. Die Grunderwerbsteuer, Notar- und Grundbuchkosten sind vom Käufer zu tragen. Im Übrigen gelten unsere Allgemeinen Geschäftsbedingungen. Irrtum und Zwischenverkauf vorbehalten.
Unsere Kaufinteressenten erklären sich damit einverstanden, dass Ihre an uns übermittelten Daten elektronisch erhoben und gespeichert werden. Die Daten werden nur zu Zwecken der Bearbeitung und Beantwortung Ihrer konkreten Anfrage genutzt. Sie können diese Einwilligung jederzeit durch eine Nachricht an uns widerrufen. Im Falle des Widerrufs werden Ihre Daten umgehend gelöscht, soweit gesetzliche Vorschriften nicht lediglich die Sperrung der Daten vorsehen. Weitere Informationen entnehmen Sie bitte unserer Datenschutzerklärung unter http://www.nachhause-immobilien.de.
Kontakt aufnehmen
Sie Suchen eine Immobilie oder möchten verkaufen?
Kontaktieren Sie uns!
Nach Hause Immobilien
GmbH & Co. KG
Froschkönigweg 1
04277 Leipzig
Tel. 0341 86721235
Fax 0341 8605967





































