Zwei Ebenen zum Ankommen
Charmante Maisonette in Markkleebergs schönster Lage
Ring 49, 04416 Markkleeberg
Objektnummer: 2059
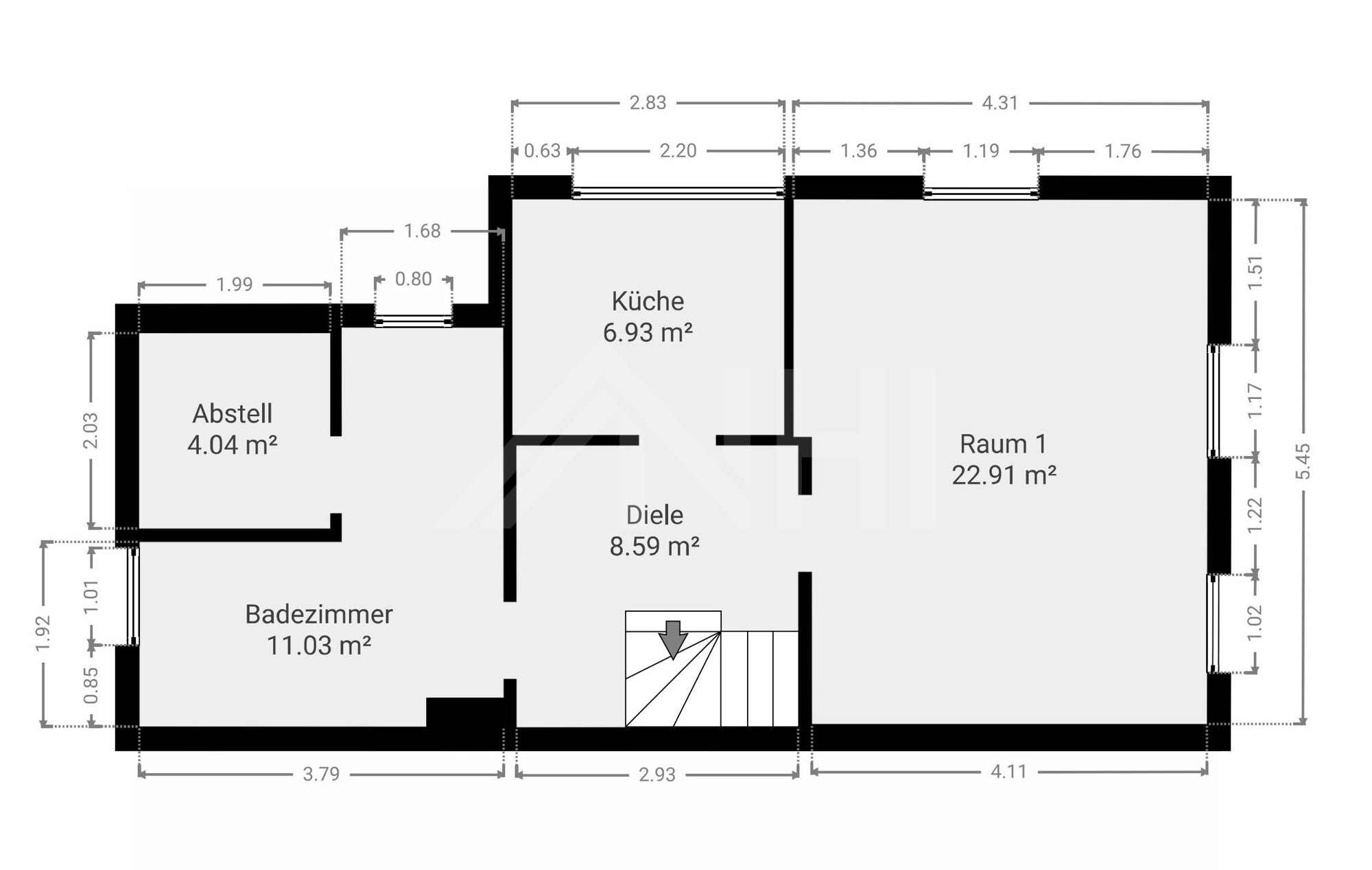
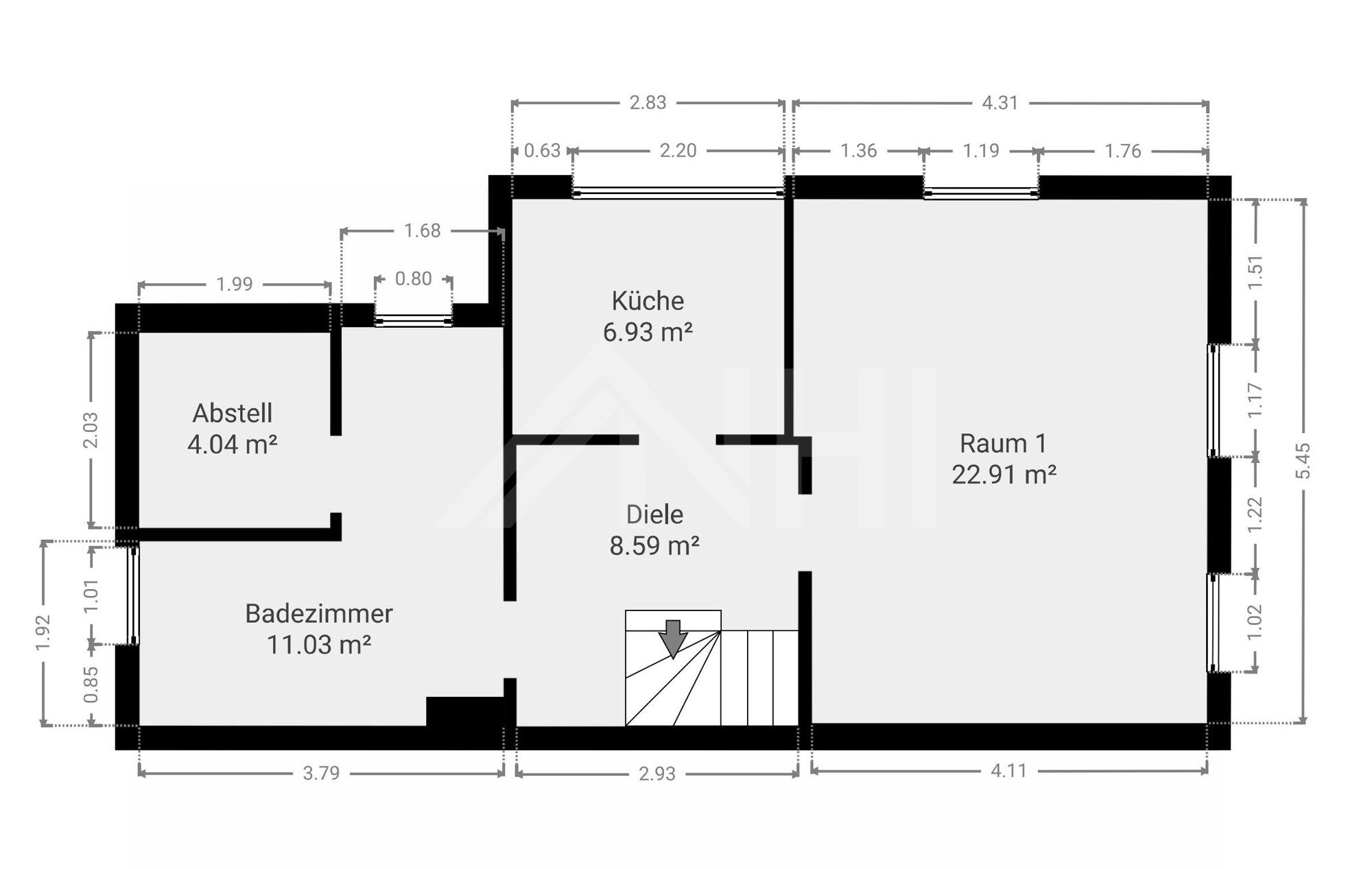
64 m2
Wohnfläche
12
Wohneinheiten
195.000 EUR
Kaufpreis
Objektbeschreibung
Zum Verkauf steht eine denkmalgeschützte Maisonette-Wohnung in einer gepflegten und massiv erbauten Wohnanlage aus dem Jahr 1904, gelegen im idyllischen Markkleeberg. Die Wohnung bietet eine Wohnfläche von 66 m², die sich über zwei Ebenen erstreckt. Sie verfügt über zwei geräumige Zimmer, sowie ein Badezimmer ......
Erhalten Sie alle wichtigen Details und entdecken Sie dieses einzigartige Angebot in unserem ausführlichen Exposé. Weitere Informationen und Unterlagen stehen Ihnen bei weiterführendem Interesse in unserer Digitalen Hausakte zur Verfügung.
Wir freuen uns auf Ihre Anfrage und begleiten Sie mit Expertise und Herz durch den gesamten Kaufprozess.
Sie möchten selbst verkaufen? Nutzen Sie unser kostenloses Bewertungstool:
immobilienpreis-leipzig.com
Herzlichst, Ihre Maklerinnen
Nach Hause Immobilien GmbH & Co. KG
0341 86721235 | Mobil 0157 73517571
www.nachhause-immobilien.de
PS:
➤ Ihre Wunschimmobilie war noch nicht dabei? Senden Sie uns Ihre Suchkriterien – wir suchen weiter!
➤ Entdecken Sie alle aktuellen Angebote noch vor Veröffentlichung über unsere Kanäle bei Instagram, WhatsApp, Facebook, Pinterest, LinkedIn, TikTok & X.
➤ Nutzen Sie unser digitales Angebotsverfahren unter:
nachhause-immobilien.de/gebotsabgabe
Hat Ihnen unser Service gefallen?
Wir freuen uns über Ihre Rezension:
https://www.nachhause-immobilien.de/unternehmen#kundenstimmen
Beschreibung der Lage
Die Wohnung befindet sich in der Ringstraße 49, zentral gelegen in der Großen Kreisstadt Markkleeberg, südlich von Leipzig. Die Umgebung zeichnet sich durch eine Mischung aus historischer Architektur und modernen Wohnbauten aus.
Die Lage bietet eine hervorragende Anbindung an den öffentlichen Nahverkehr. Der S-Bahnhof Markkleeberg ist fußläufig erreichbar und ermöglicht schnelle Verbindungen nach Leipzig und in die umliegenden Regionen. Zudem sind Buslinien in unmittelbarer Nähe vorhanden, die eine flexible Mobilität gewährleisten.
In der näheren Umgebung befinden sich diverse Einkaufsmöglichkeiten, darunter Supermärkte, Bäckereien und Apotheken. Auch gastronomische Einrichtungen wie Cafés und Restaurants sind bequem zu Fuß erreichbar.
Markkleeberg ist bekannt für seine Nähe zum Leipziger Neuseenland, insbesondere zum Cospudener und Markkleeberger See, die vielfältige Freizeit- und Erholungsmöglichkeiten bieten. Zudem lädt der nahegelegene agra-Park zu Spaziergängen und sportlichen Aktivitäten ein.
Für Familien mit Kindern sind Kindertagesstätten, Grundschulen und weiterführende Schulen in der Umgebung vorhanden. Die Bildungs- und Betreuungseinrichtungen sind gut erreichbar und bieten ein breites Angebot.
Rechtliches
Dieses Exposee ist eine Vorinformation. Die Angaben im Exposé dienen lediglich der allgemeinen Information und sind unverbindlich. Für die Richtigkeit und Vollständigkeit wird keine Haftung übernommen. Als Rechtsgrundlage gilt allein der notarielle Kaufvertrag.
Der Maklervertrag kommt unabhängig von der von Ihnen genutzten Immobilienplattform direkt mit der Nach Hause Immobilien GmbH & Co. KG zustande. Die Plattform dient ausschließlich der ersten Kontaktaufnahme.
Energiebedarf (EnEV 2014): Sollte Ihnen aktuell kein Energieausweis angezeigt werden, so wird spätestens bei der Besichtigung ein Energieausweis vorliegen. Handelt es sich bei dem Angebot um eine denkmalgeschützte Immobilie, ist diese von der Ausweispflicht ausgenommen. EnEV § 16, Absatz 5 S. 2 stellt Baudenkmäler ausdrücklich von der Verpflichtung zur Vorlage/Übergabe eines Energieausweises bei Verkauf und Vermietung frei. Handelt es sich bei dem Angebot um einen Neubau, erfolgt die Vorlage des Energieausweises durch die Bauherren unverzüglich nach Fertigstellung, da der Energieausweis die tatsächlichen energetischen Eigenschaften des fertiggestellten Gebäudes aufweisen muss.
Für die steuerlichen Konsequenzen aus der Entscheidung zum Kauf empfiehlt es sich, vor dem Abschluss eines Kaufvertrages einen Steuerberater des Vertrauens zu Rate zu ziehen. Mit diesem Angebotsprofil werden ausschließlich Auskünfte zu der angebotenen Immobilie erteilt. Seitens der Maklerin, Initiatorin, Prospektherausgeberin und oder Verkäuferin wird keine Rechts-, Steuer-, Finanzierungs-, Kapitalanlage- oder Wirtschaftsberatung erbracht.
Die in diesem Exposee ausgewiesene Maklerprovision inkl. der gesetzlichen Mehrwertsteuer auf den Kaufpreis ist mit dem Zustandekommen des Kaufvertrages (notarieller Vertragsabschluss) verdient und fällig. Die Vermittelnden und/oder Nachweisenden, Nach Hause Immobilien GmbH & Co. KG, erhalten einen unmittelbaren Zahlungsanspruch gegenüber dem Käufer (Vertrag zugunsten Dritter, § 328 BGB). Sollte das nachgewiesene Objekt innerhalb eines Jahres privat erworben werden, so ist die Maklergebühr ebenfalls in voller Höhe an die Nach Hause Immobilien GmbH & Co. KG zu zahlen. Die Höhe der Bruttocourtage unterliegt einer Anpassung bei Steuersatzänderung. Von einer späteren Vertragsauflösung bleibt unser Provisionsanspruch unberührt, sofern die Vertragsauflösung aus einem Grund erfolgte, den die Nach Hause Immobilien GmbH & Co. KG nicht zu vertreten hat. Wir haben mit dem Eigentümer einen provisionspflichtigen Vertrag in gleicher Höhe abgeschlossen.
Da wir Objektangaben nicht selbst ermitteln, übernehmen wir hierfür keine Gewähr. Alle Angaben basieren ausschließlich auf Informationen, die uns von unserem Auftraggeber zur Verfügung gestellt wurden. Dieses Exposee ist nur für Sie persönlich bestimmt. Eine Weitergabe an Dritte ist an unsere ausdrückliche Zustimmung gebunden und unterbindet nicht unseren Provisionsanspruch bei Zustandekommen eines Vertrages. Alle Gespräche sind über unser Büro zu führen. Bei Zuwiderhandlung behalten wir uns Schadenersatz bis zur Höhe der Provisionsansprüche ausdrücklich vor. Zwischenverkauf ist nicht ausgeschlossen. Die Grunderwerbsteuer, Notar- und Grundbuchkosten sind vom Käufer zu tragen. Im Übrigen gelten unsere Allgemeinen Geschäftsbedingungen. Irrtum und Zwischenverkauf vorbehalten.
Unsere Kaufinteressenten erklären sich damit einverstanden, dass Ihre an uns übermittelten Daten elektronisch erhoben und gespeichert werden. Die Daten werden nur zu Zwecken der Bearbeitung und Beantwortung Ihrer konkreten Anfrage genutzt. Sie können diese Einwilligung jederzeit durch eine Nachricht an uns widerrufen. Im Falle des Widerrufs werden Ihre Daten umgehend gelöscht, soweit gesetzliche Vorschriften nicht lediglich die Sperrung der Daten vorsehen. Weitere Informationen entnehmen Sie bitte unserer Datenschutzerklärung unter http://www.nachhause-immobilien.de.
Energieausweis
- 1904
- Gas, Wasser / Elektro
- nein
Energiekennwert: keine Angabe
Kontakt aufnehmen
Sie interessieren sich für dieses Objekt?
Kontaktieren Sie uns!
Nach Hause Immobilien
GmbH & Co. KG
Froschkönigweg 1
04277 Leipzig
Tel. 0341 86721235
Fax 0341 8605967








