Es war einmal ein Prinz
Märchenhafte Doppelhaushälfte sucht Denkmalretter
Objektnummer: 1015
5
Zimmer
120 m2
Wohnfläche
330 m2
Grundstück
3
Schlafzimmer
1
Badezimmer
390.000 EUR
Kaufpreis
Objektbeschreibung
Angeboten wird eine unsanierte Doppelhaushälfte mit 5 Zimmern auf einer Wohnfläche von ca. 120 m² mit Garten und Garage in einer verkehrsberuhigten Seitenstraße von Marienbrunn. Die zum Verkauf stehende Immobilie wurde 1927, geplant von dem Architekten Johannes Koppe, erbaut und ist in Gesamtheit ein Doppelwohnhaus in offener Bebauung mit Vorgarten und Einfriedung, Putzfassade, Ziegelsockel und Sandsteingliederungen als Teil der Siedlung Mariental. Mit seinen baugebundenen historischen Ausstattungen stellt die Immobilie ein Kulturdenkmal dar. Unseren Erwerbern sollte es gelingen, den einzigartigen geschichtlichen Reiz dieser Immobilie in die Moderne zu transportieren und diese Immobilie ins 21. Jahrhundert zu führen.
Denn mit dieser Immobilie entscheiden Sie sich nicht nur für entspanntes Familienleben in einem attraktiven Einfamilienhaus in einem ganz märchenhaften Leipziger Stadtviertel, in Marienbrunn im Süden von Leipzig. Sie erwerben die Möglichkeit auf ein gemütliches Zuhause, viel grünen Freiraum für ungefährdetes Spielen der Kinder, nachbarschaftliche Begegnungen und einen behaglichen Rückzugsort in einer der beliebtesten Wohnviertel Leipzigs.
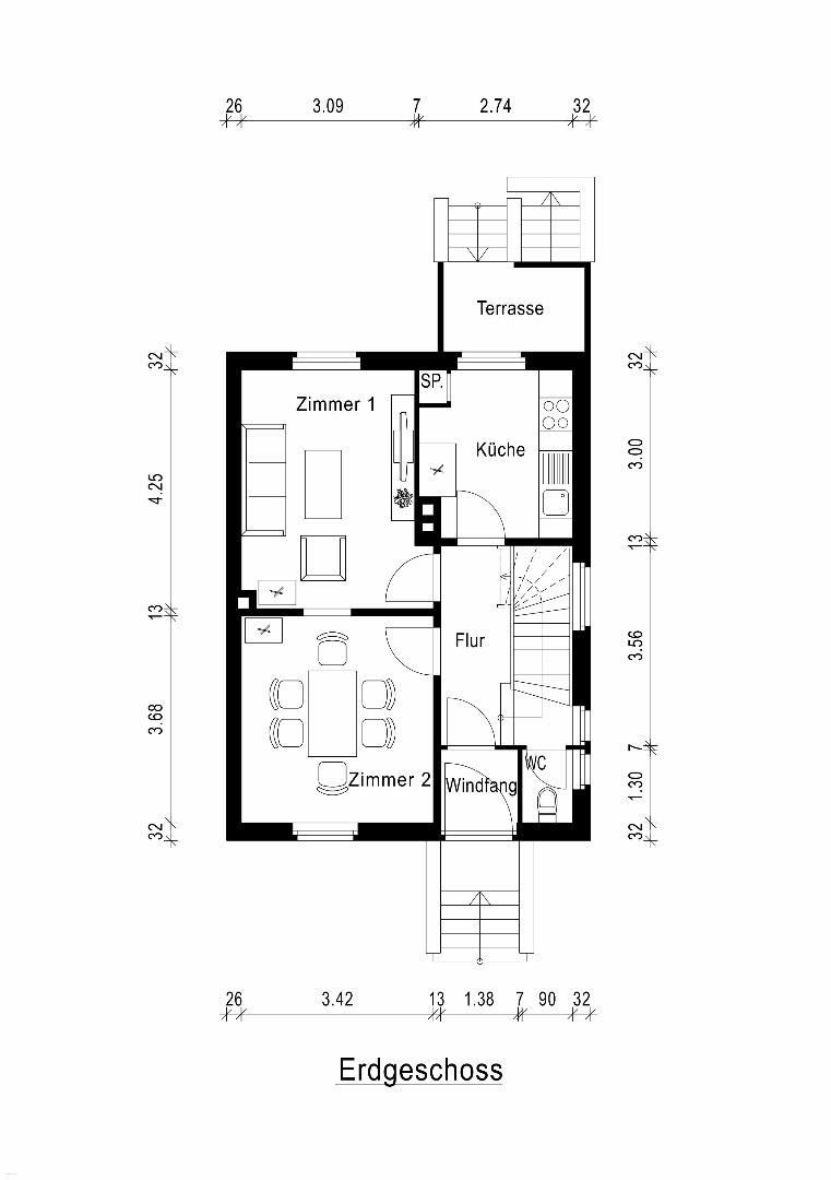
Das Grundstück ist insgesamt ca. 330 m² groß. Zum Verkauf steht das Ende der 20er Jahre erbaute Einfamilienhaus eines 2er Doppelhauskomplexes, weil die Bewohner ihren seniorengerechten Alterssitz gefunden haben. Das Haus ist voll unterkellert und verfügt über Erdgeschoss, Obergeschoss und Dachgeschoss. In dem großen Keller liegen der Heizraum, der Waschkeller und ein weiterer Raum, der aktuell noch für die Brennstoffvorräte genutzt wird. Im Erdgeschoss finden Sie angrenzend an die Diele Ihre Wohnküche, ein Esszimmer und eine Stube. Im Obergeschoss dominieren das Badezimmer und zwei Schlafzimmer. Das Dachgeschoss eignet sich mit seinen drei kleinen Räumen zum Ausbau eines großzügigen Studios für die Kinder oder als Rückzugsort für die Eltern.
Alle Räumlichkeiten gewähren einen außerordentlich sanierungsbedürftigen Eindruck. Doch die umliegende Bebauung verleiht diesem Objekt einen ganz besonderen Charme. Im Kaufpreis bereits berücksichtigt sind die anstehenden Modernisierungs- und Sanierungsmaßnahmen.
Supermärkte und diverse andere Ladengeschäfte sind günstig gelegen und garantieren den zumeist langjährigen Bewohnern von Marienbrunn eine optimale Versorgungssituation. Im Viertel erlangt man einen ruhigen und beschaulichen Wohneindruck. Im Fazit verspricht diese Immobilie nach einer Sanierung Komfort und Wohnlichkeit. Hier lässt es sich leben!
Haben Sie weitere Fragen zu diesem Angebot, dann rufen Sie uns gerne an! Wir freuen uns darauf, diese besondere Immobilie mit Ihnen besichtigen zu dürfen.
❤ lichst
Ihre Maklerinnen
Beschreibung der Lage
Willkommen in der Welt der Märchen und Märchenerzähler, willkommen zu Hause in Marienbrunn!
Marienbrunn ist ein Wohngebiet des Stadtteils Connewitz und umfasst primär die Siedlungen Marienbrunn und Mariental. Und es ist eine Gartenstadt. Viel Grün säumt hier die Straßen mit den denkmalgeschützten Ein- und Mehrfamilienhäusern. Gärten mit knackig roten Apfelbäumen und Pflanzen in prächtig blühenden Farben versprechen eine angenehme und harmonische Wohnatmosphäre.
Die angebotene Immobilie liegt mittendrin in der Gartenstadt Marienbrunn, im Süden von Leipzig, der durch seine familienfreundliche Infrastruktur und seine vielfältigen Freizeitmöglichkeiten zu den bevorzugten Wohnlagen zählt. Die Gartenstadtbewegung war als Antwort auf die überbevölkerten und industrialisierten Städte in England entstanden. Gartenstädte sollten bewusst als Wohnstädte getrennt von den Arbeitsstätten geplant werden und somit bessere Lebensbedingungen bieten.
Der Park im Zentrum wurde Märchenwiese getauft. Daher bekamen Straßen und Wege um den Park herum Märchennamen. So gibt es den Rotkäppchenweg, den Aschenbrödelweg und den Froschkönigweg. Auch Märchenerzähler wie Hans Christian Andersen wurden geehrt. Die Märchenstraßen gehören dem 1927 erbauten Viertel Mariental an. Umgeben von Parks und durch die Nähe zur Südvorstadt und dem Auwald und der damit verbundenen Grünen Lunge Leipzigs, schafft es Marienbrunn Alt und Jung mehr denn je anzuziehen. Der Stadtteil verfügt über eine hohe Anzahl an Wohnhäusern, die als Kulturdenkmale eingetragen sind. Umgeben von historisch wertvollem Kulturerbe, wie dem Völkerschlachtdenkmal, findet man in Marienbrunn selten Leerstand. In den letzten Jahren nahm die Beliebtheit dieses Stadtteils enorm zu. Das angebotene Objekt liegt inmitten eines ausgedehnten Siedlungsgebietes mit zahlreichen Wohn-, Siedlungs- und Gartengrundstücken in sehr ruhiger Umgebung bei guter Verkehrslage. Nur wenige Meter entfernt liegt die Marienbrunner Grundschule.
Marienbrunn gilt als exklusive Wohnlage mit kurzen Wegen zu Kindergarten, Grundschule und Gymnasium. Fußläufig erreicht man die Südvorstadt, das Völkerschlachtdenkmal und die Alte Messe. Marienbrunn ist ein Stadtteil mit explodierender Wachstumsrate und steigenden Mieten, der sich auszeichnet durch seine grüne Umgebung mit Parks für Erholung und Freizeit, eine komplette Infrastruktur vor der Haustür und gute Parkmöglichkeiten in einem sehr ansprechend sanierten Umfeld.
Für die rund 5600 Einwohner hat Marienbrunn an der Zwickauer Straße drei Apotheken: Apotheke Marienbrunn: Zwickauer Straße 99a, Cosmas-Apotheke: Zwickauer Straße 125, Fleming-Apotheke: Zwickauer Straße 127 sowie zwei Zahnärzte, eine Augenärztin, einen Kinderarzt und einen Urologen zu bieten. Entlang der Straßen an der Märchenwiese befinden sich ebenfalls Zahnärzte sowie Allgemeinärzte. Der Spielplatz "An der Märchenwiese" wurde erst vor wenigen Jahren in ein Märchenschlösschen verwandelt und erfreut sich großer Beliebtheit.
Der Erholungspark Lößnig-Dölitz ist in 5 Minuten erreicht, eine der jüngsten und größten Parkanlagen in Leipzig. Das Gesamtgelände ist das Landschaftsschutzgebiet Lößnig-Dölitz und bietet Groß und Klein viel Abwechslung und Platz zum Spielen und Toben.
Details zur Provision
Die Courtage in Höhe von 6 % zuzüglich der derzeit gültigen gesetzlichen Mehrwertsteuer auf den Kaufpreis ist mit dem Zustandekommen des Kaufvertrages (notarieller Vertragsabschluss) verdient und fällig. Die Vermittelnden und/oder Nachweisenden, Nach Hause Immobilien GmbH & Co. KG, erhalten einen unmittelbaren Zahlungsanspruch gegenüber dem Käufer (Vertrag zugunsten Dritter, § 328 BGB). Sollte das nachgewiesene Objekt innerhalb eines Jahres privat erworben werden, so ist die Maklergebühr ebenfalls in voller Höhe an die Nach Hause Immobilien GmbH & Co. KG zu zahlen. Die Höhe der Bruttocourtage unterliegt einer Anpassung bei Steuersatzänderung.
Rechtliches
Es war einmal ein Prinz, der lebte in einem großen Königreich. Irgendwann ging er auf Reisen. Er sattelte seinen Schimmel, legte sich in die glänzende Rüstung und ritt los ...
Angeboten wird eine Doppelhaushälfte mit 5 Zimmern auf einer Wohnfläche von ca. 100 m² mit Garten und Garage in einer verkehrsberuhigten Seitenstraße von Marienbrunn. Mit dieser Immobilie entscheiden Sie sich nicht nur für entspanntes Familienleben in einem attraktiven Einfamilienhaus in einem ganz märchenhaften Leipziger Stadtviertel, in Marienbrunn im Süden von Leipzig. Alle Räumlichkeiten gewähren einen außerordentlich sanierungsbedürftigen Eindruck. Doch die umliegende Bebauung verleiht diesem Objekt einen besonderen Charme. Im Kaufpreis bereits brücksichtigt sind die anstehenden Modernisierungs- und Sanierungsmaßnahmen.
Kontakt aufnehmen
Sie Suchen eine Immobilie oder möchten verkaufen?
Kontaktieren Sie uns!
Nach Hause Immobilien
GmbH & Co. KG
Froschkönigweg 1
04277 Leipzig
Tel. 0341 86721235
Fax 0341 8605967





































