Willkommen in der Welt der Märchen und Märchenerzähler
Reihenmittelhaus in idyllischster Wohnlage
Objektnummer: 1056
5
Zimmer
135 m2
Wohnfläche
300 m2
Grundstück
3
Schlafzimmer
2
Badezimmer
423.669 EUR
Kaufpreis
Objektbeschreibung
Angeboten wird ein modernes Reihenmittelhaus mit 5 Zimmern auf einer Wohnfläche von ca. 135 m² mit hübschem Garten in einer verkehrsruhigen Seitenstraße. Mit dieser Immobilie entscheiden Sie sich nicht nur für entspanntes Familienleben in einem attraktiven Einfamilienhaus in einem ganz märchenhaften Leipziger Stadtviertel in Marienbrunn im Süden von Leipzig. Sie erwerben ein gemütliches Zuhause, sonnige, helle Räume, viel grünen Freiraum für ungefährdetes Spielen der Kinder, nachbarschaftliche Begegnungen und einen behaglichen Rückzugsort.
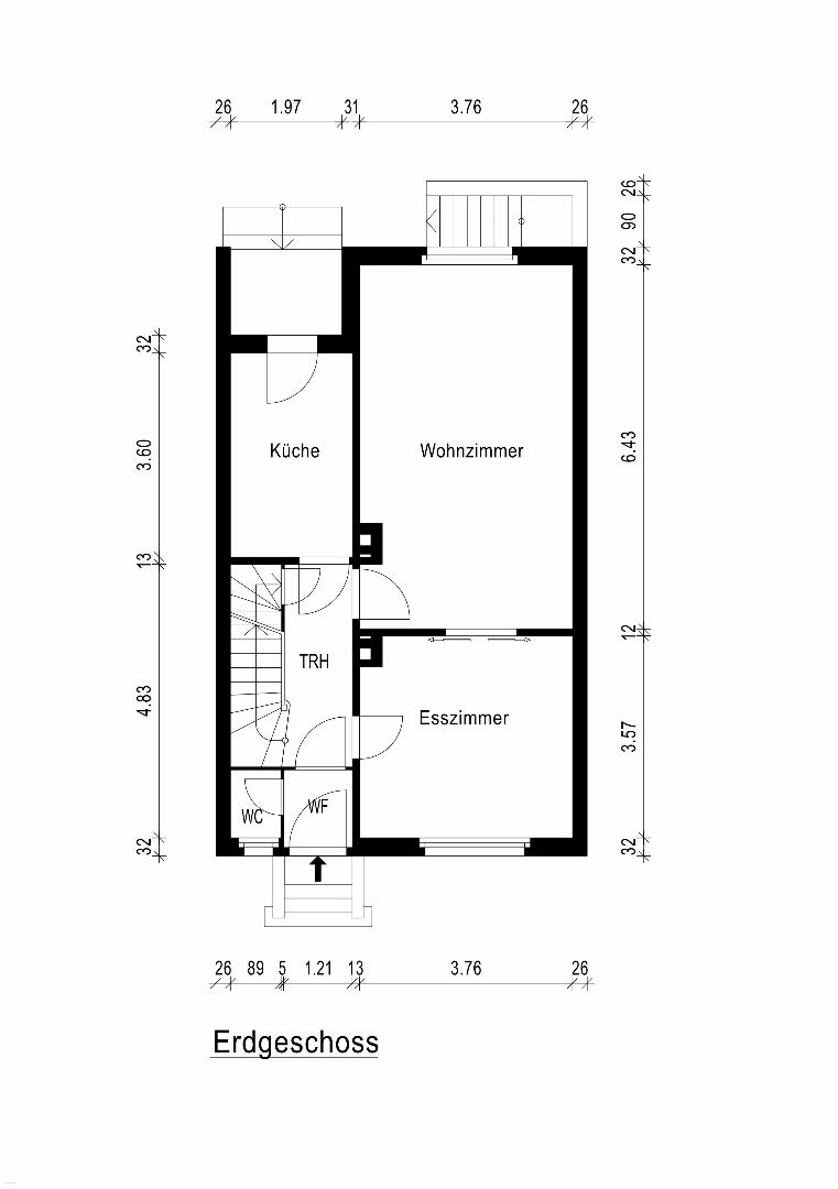
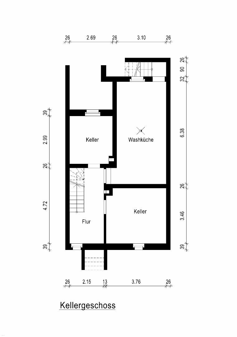
Das Grundstück ist insgesamt ca. 300 m² groß und liegt an der nordöstlichen Grenze des Wohngebietes Märchenwiese im Stadtteil Connewitz. Das Gebiet Märchenwiese als bautechnisches Flächendenkmal gilt als eine bevorzugte Wohnlage. Die Grundstücksmaße betragen 6,30 m in der Front und 45 m in der Tiefe. Die parallel zum Garten verlaufende Wohngebietsstraße ist 6 m breit, bitumenbefestigt und einseitig von einem Gehweg begrenzt. Die Straße selbst endet hier als Sackgasse. Das Grundstück ist voll erschlossen. Bei der vorhandenen Wohnbebauung handelt es sich um eine geschlossende, teils offene Altbebauung aus den 30er Jahren. Die Immobilie befindet sich in einem außerordentlich gepflegten Zustand. Alle Räume sind bereits umfassend modernisiert und saniert. Zum Verkauf steht das Ende der 20er Jahre erbaute Reihenendhaus eines 5er Reihenhauskomplexes, weil die Bewohner ihren seniorengerechten Alterssitz gefunden haben. Das Haus ist voll unterkellert und verfügt über Erdgeschoss, Obergeschoss und Dachgeschoss. Im Kellergeschoss liegen der Hauswirtschaftsraum, der auch die Heizungsanlage beherbergt, eine Waschküche und ein weiterer Raum, der individuell genutzt werden kann. Im Erdgeschoss finden Sie angrenzend an die hübsche Diele Ihre kleine Wohnküche und ein herrlich großzügiges Wohn- und Esszimmer. Im Obergeschoss dominieren das Badezimmer und die Schlafzimmer, die an einen gemütlichen Wintergarten angrenzen. Das Dachgeschoss eignet sich mit seinem praktischen Studio und dem zusätzlichen Zimmer perfekt für die Kinder oder als Rückzugsort für die Eltern.
Alle Räumlichkeiten wurden in den letzten 20 Jahren renoviert und gewähren einen sehr gepflegten Eindruck. Die umliegende Bebauung sowie der kurze Weg zum Park an der Märchenwiese verleihen diesem Objekt einen ganz besonderen Charme.
Supermärkte und diverse andere Ladengeschäfte sind günstig gelegen und garantieren den zumeist langjährigen Bewohnern von Marienbrunn eine optimale Versorgungssituation. Im Viertel erlangt man einen ruhigen und beschaulichen Wohneindruck. Der großstädtische Straßenverkehr ist weit entfernt und das Rauschen der Baumwipfel verführt mit fast schon ländlichem Charme. Im Fazit verspricht diese nahezu bezugsfertige Immobilie höchsten Komfort und Wohnlichkeit. Hier lässt es sich leben!
Haben Sie weitere Fragen zu diesem Angebot, dann rufen Sie uns gerne an! Wir freuen uns darauf, diese besondere Immobilie mit Ihnen besichtigen zu dürfen.
❤ lichst
Ihre Maklerinnen
Beschreibung der Lage
Willkommen in der Welt der Märchen und Märchenerzähler, willkommen zu Hause in Marienbrunn!
Marienbrunn ist ein Wohngebiet des Stadtteils Connewitz und umfasst primär die Siedlungen Marienbrunn und Mariental. Und es ist eine Gartenstadt. Viel Grün säumt hier die Straßen mit den denkmalgeschützten Ein- und Mehrfamilienhäusern. Gärten mit knackig roten Apfelbäumen und Pflanzen in prächtig blühenden Farben versprechen eine angenehme und harmonische Wohnatmosphäre.
Die angebotene Immobilie liegt mittendrin in der Gartenstadt Marienbrunn, im Süden von Leipzig, der durch seine familienfreundliche Infrastruktur und seine vielfältigen Freizeitmöglichkeiten zu den bevorzugten Wohnlagen zählt. Die Gartenstadtbewegung war als Antwort auf die überbevölkerten und industrialisierten Städte in England entstanden. Gartenstädte sollten bewusst als Wohnstädte getrennt von den Arbeitsstätten geplant werden und somit bessere Lebensbedingungen bieten.
Der Park im Zentrum wurde Märchenwiese getauft. Daher bekamen Straßen und Wege um den Park herum Märchennamen. So gibt es den Rotkäppchenweg, den Aschenbrödelweg und den Froschkönigweg. Auch Märchenerzähler wie Hans Christian Andersen wurden geehrt. Die Märchenstraßen gehören dem 1927 erbauten Viertel Mariental an. Umgeben von Parks und durch die Nähe zur Südvorstadt und dem Auwald und der damit verbundenen Grünen Lunge Leipzigs, schafft es Marienbrunn Alt und Jung mehr denn je anzuziehen. Der Stadtteil verfügt über eine hohe Anzahl an Wohnhäusern, die als Kulturdenkmale eingetragen sind. Umgeben von historisch wertvollem Kulturerbe, wie dem Völkerschlachtdenkmal, findet man in Marienbrunn selten Leerstand. In den letzten Jahren nahm die Beliebtheit dieses Stadtteils enorm zu. Das angebotene Objekt liegt inmitten eines ausgedehnten Siedlungsgebietes mit zahlreichen Wohn-, Siedlungs- und Gartengrundstücken in sehr ruhiger Umgebung bei guter Verkehrslage. Nur wenige Meter entfernt liegt die Marienbrunner Grundschule.
Marienbrunn gilt als exklusive Wohnlage mit kurzen Wegen zu Kindergarten, Grundschule und Gymnasium. Fußläufig erreicht man die Südvorstadt, das Völkerschlachtdenkmal und die Alte Messe. Marienbrunn ist ein Stadtteil mit explodierender Wachstumsrate und steigenden Mieten, der sich auszeichnet durch seine grüne Umgebung mit Parks für Erholung und Freizeit, eine komplette Infrastruktur vor der Haustür und gute Parkmöglichkeiten in einem sehr ansprechend sanierten Umfeld.
Für die rund 5600 Einwohner hat Marienbrunn an der Zwickauer Straße drei Apotheken: Apotheke Marienbrunn: Zwickauer Straße 99a, Cosmas-Apotheke: Zwickauer Straße 125, Fleming-Apotheke: Zwickauer Straße 127 sowie zwei Zahnärzte, eine Augenärztin, einen Kinderarzt und einen Urologen zu bieten. Entlang der Straßen an der Märchenwiese befinden sich ebenfalls Zahnärzte sowie Allgemeinärzte. Der Spielplatz "An der Märchenwiese" wurde erst vor wenigen Jahren in ein Märchenschlösschen verwandelt und erfreut sich großer Beliebtheit.
Der Erholungspark Lößnig-Dölitz ist in 5 Minuten erreicht, eine der jüngsten und größten Parkanlagen in Leipzig. Das Gesamtgelände ist das Landschaftsschutzgebiet Lößnig-Dölitz und bietet Groß und Klein viel Abwechslung und Platz zum Spielen und Toben.
Rechtliches
Angeboten wird ein modernes Reihenmittelhaus mit 5 Zimmern auf einer Wohnfläche von ca. 135 m² mit hübschem Garten in einer verkehrsruhigen Seitenstraße.
Kontakt aufnehmen
Sie Suchen eine Immobilie oder möchten verkaufen?
Kontaktieren Sie uns!
Nach Hause Immobilien
GmbH & Co. KG
Froschkönigweg 1
04277 Leipzig
Tel. 0341 86721235
Fax 0341 8605967

































