Willkommen in der Welt der Märchen und Märchenerzähler
Doppelhaushälfte in Marienbrunn
Objektnummer: 1113
3
Zimmer
90 m2
Wohnfläche
300 m2
Grundstück
1
Schlafzimmer
1
Badezimmer
450.000 EUR
Kaufpreis
Objektbeschreibung
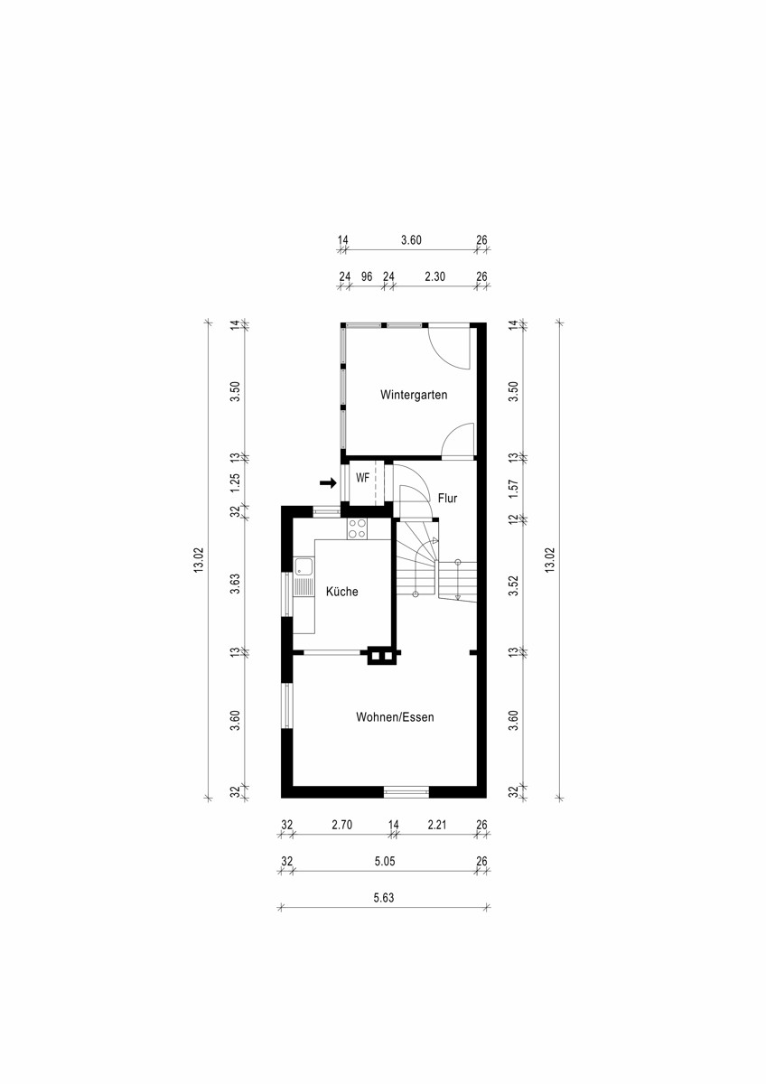
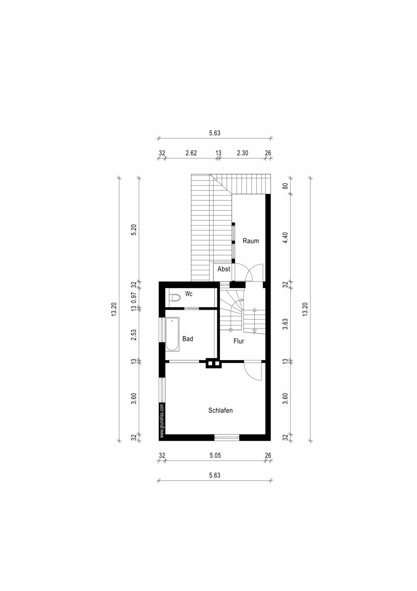
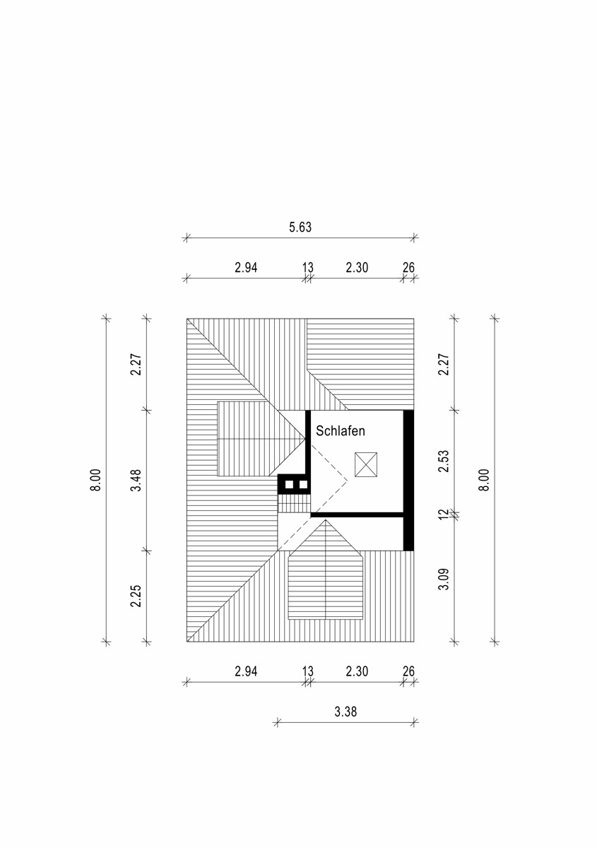
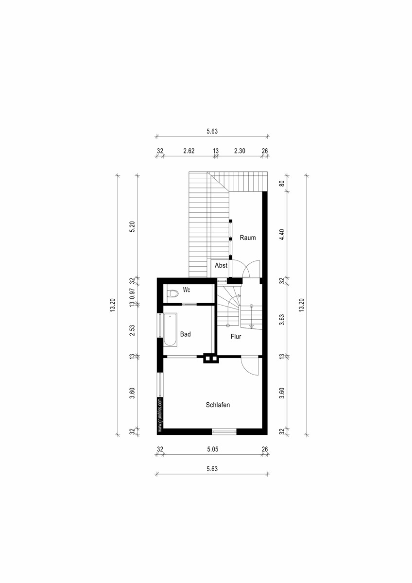
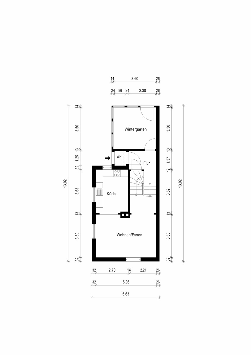
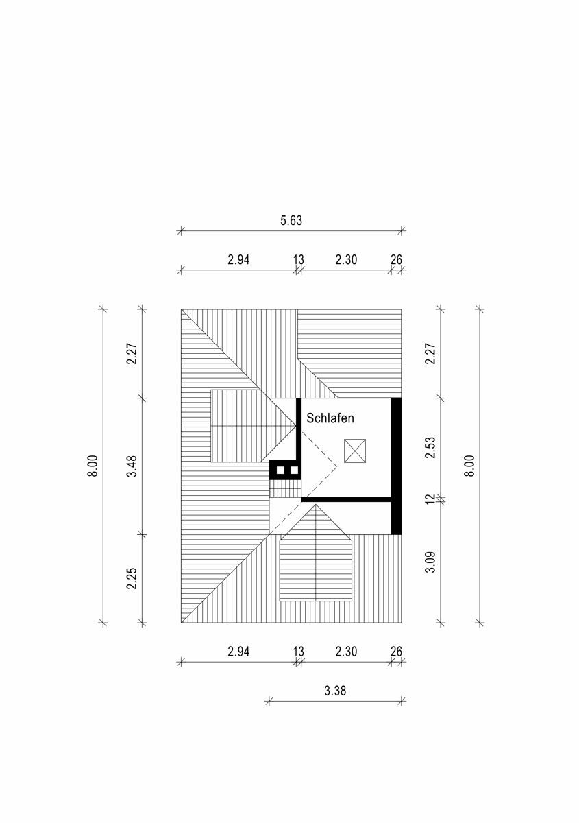
Angeboten wird eine Doppelhaushälfte in der Gartenstadt Marienbrunn mit ca. 300 m² Grundstück und 3 Zimmern auf ca. 90 m² Wohnfläche. Die Immobilie wurde 1927, geplant von dem Architekten Johannes Koppe, erbaut und im Jahr 2007 komplett kernsaniert und in einen neuwertigen Zustand versetzt. Besonderes Augenmerk wurde dabei auf das Erneuern der Dachkonstruktion samt Dacheindeckung sowie auf die Fassade mit Fenstern und Türen gelegt. Des Weiteren wurden im Inneren die Haustechnik, die Elektro-, Wasser- und Heizungsinstallation, erneuert. Da es sich bei der zum Verkauf stehenden Immobilie um ein Kulturdenkmal handelt, informieren wir darüber, dass im Rahmen der Sanierung nicht alle Auflagen des Denkmalschutzes eingehalten wurden. Diese Verstöße wurden bereits geahndet und sind derzeit geduldet, solange eigentümerseits alle zukünftigen Sanierungs-, Umbau- und Baupflegemaßnahmen im Sinne des Denkmalschutzes vorgenommen werden. Ebenfalls im Rahmen der Kernsanierung im Jahr 2007 wurde ein bestehender Anbau zurück gebaut und ein neuer Anbau errichtet. Da die überbaute Fläche vom Bestand und von der genehmigten Kubatur abweicht, ist dieser Neubau des Anbaus nicht Bestandteil des Kaufangebotes. Auch wenn eine Abrissverfügung eher unwahrscheinlich ist, es besteht eine rechtliche Unsicherheit. Zu Wohnzwecken stehen Ihnen in diesem Anbau zusätzlich ein Wintergarten und ein Ankleidezimmer auf einer Fläche von ca. 30 m² zur Verfügung.
Bitte haben sie Verständnis dafür, dass wir von einem möglichen Fotografierrecht in einer bewohnten Immobilie nur begrenzt Gebrauch machen können..........................................
Fordern Sie unverbindlich unser Exposé an und erhalten Sie alle weiterführenden Informationen zu diesem Immobilienangebot!
Gerne begleiten wir Sie durch alle Prozesse und stehen Ihnen für Ihre Fragen im Büro zur Verfügung, auch wenn Sie selbst an den Verkauf Ihres Grundbesitzes denken oder eine Bewertung Ihrer Immobilie wünschen.
Herzlichst, Ihre Maklerinnen
Und unsere Partner von der Finanzierungsabteilung besprechen mit Ihnen auf Wunsch auch gute Konzepte und Konditionen zur Finanzierung Ihrer neuen Wohnimmobilie.
Folgen Sie uns auch auf Social Media. Hier Informieren wir Sie noch vor der Veröffentlichung in den Portalen über aktuelle Immobilienangebote, Veranstaltungen, Sehenswertes und Wissenswertes rund um die Immobilie.
Beschreibung der Lage
Willkommen in der Welt der Märchen und Märchenerzähler, willkommen zu Hause in Marienbrunn!
Marienbrunn ist ein Wohngebiet des Stadtteils Connewitz und umfasst primär die Siedlungen Marienbrunn und Mariental. Und es ist eine Gartenstadt. Viel Grün säumt hier die Straßen mit den denkmalgeschützten Ein- und Mehrfamilienhäusern. Gärten mit knackig roten Apfelbäumen und Pflanzen in prächtig blühenden Farben versprechen eine angenehme und harmonische Wohnatmosphäre.
Die angebotene Immobilie liegt mittendrin in der Gartenstadt Marienbrunn, im Süden von Leipzig, der durch seine familienfreundliche Infrastruktur und seine vielfältigen Freizeitmöglichkeiten zu den bevorzugten Wohnlagen zählt. Die Gartenstadtbewegung war als Antwort auf die überbevölkerten und industrialisierten Städte in England entstanden. Gartenstädte sollten bewusst als Wohnstädte getrennt von den Arbeitsstätten geplant werden und somit bessere Lebensbedingungen bieten.
Der Park im Zentrum wurde Märchenwiese getauft. Daher bekamen Straßen und Wege um den Park herum Märchennamen. So gibt es den Rotkäppchenweg, den Aschenbrödelweg und den Froschkönigweg. Auch Märchenerzähler wie Hans Christian Andersen wurden geehrt. Die Märchenstraßen gehören dem 1927 erbauten Viertel Mariental an. Umgeben von Parks und durch die Nähe zur Südvorstadt und dem Auwald und der damit verbundenen Grünen Lunge Leipzigs, schafft es Marienbrunn Alt und Jung mehr denn je anzuziehen. Der Stadtteil verfügt über eine hohe Anzahl an Wohnhäusern, die als Kulturdenkmale eingetragen sind. Umgeben von historisch wertvollem Kulturerbe, wie dem Völkerschlachtdenkmal, findet man in Marienbrunn selten Leerstand. In den letzten Jahren nahm die Beliebtheit dieses Stadtteils enorm zu.
Das angebotene Objekt liegt inmitten eines ausgedehnten Siedlungsgebietes mit zahlreichen Wohn-, Siedlungs- und Gartengrundstücken in sehr ruhiger Umgebung bei guter Verkehrslage. Nur wenige Meter entfernt liegt die Marienbrunner Grundschule.
Marienbrunn gilt als exklusive Wohnlage mit kurzen Wegen zu Kindergarten, Grundschule und Gymnasium. Fußläufig erreicht man die Südvorstadt, das Völkerschlachtdenkmal und die Alte Messe. Marienbrunn ist ein Stadtteil mit explodierender Wachstumsrate und steigenden Mieten, der sich auszeichnet durch seine grüne Umgebung mit Parks für Erholung und Freizeit, eine komplette Infrastruktur vor der Haustür und gute Parkmöglichkeiten in einem sehr ansprechend sanierten Umfeld.
Für die rund 5600 Einwohner hat Marienbrunn an der Zwickauer Straße drei Apotheken: Apotheke Marienbrunn: Zwickauer Straße 99a, Cosmas-Apotheke: Zwickauer Straße 125, Fleming-Apotheke: Zwickauer Straße 127 sowie zwei Zahnärzte, eine Augenärztin, einen Kinderarzt und einen Urologen zu bieten. Entlang der Straßen an der Märchenwiese befinden sich ebenfalls Zahnärzte sowie Allgemeinärzte. Der Spielplatz "An der Märchenwiese" wurde erst vor wenigen Jahren in ein Märchenschlösschen verwandelt und erfreut sich großer Beliebtheit.
Der Erholungspark Lößnig-Dölitz ist in 5 Minuten erreicht, eine der jüngsten und größten Parkanlagen in Leipzig. Das Gesamtgelände ist das Landschaftsschutzgebiet Lößnig-Dölitz und bietet Groß und Klein viel Abwechslung und Platz zum Spielen und Toben.
Willkommen in einer der lebendigsten Städte Deutschlands. Leipzig bleibt auf Erfolgskurs und Dank umfassender Investitionen verfügt die traditionsreiche Universitäts- und Messestadt heute über eine hochmoderne Infrastruktur und zählt zu den attraktivsten Wirtschaftsstandorten in Deutschland. Wer jetzt in Leipzig Wohneigentum erwirbt, investiert in eine Boomstadt im Osten mit viel Kreativität und kann immer noch von historisch niedrigen Zinsen profitieren. Ein Anstieg der Kaufpreise und damit auch der Mieten ist zu erwarten.
Rechtliches
Dieses Exposee ist eine Vorinformation. Als Rechtsgrundlage gilt allein der notarielle Kaufvertrag. Energiebedarf (EnEV 2014): Sollte Ihnen aktuell kein Energieausweis angezeigt werden, so wird spätestens bei der Besichtigung dem Kauf- oder Mietinteressenten ein Energieausweis vorliegen. Handelt es sich bei dem Angebot um eine denkmalgeschützte Immobilie, ist diese von der Ausweispflicht ausgenommen. EnEV § 16, Absatz 5 S. 2 stellt Baudenkmäler ausdrücklich von der Verpflichtung zur Vorlage/Übergabe eines Energieausweises bei Verkauf und Vermietung frei. Handelt es sich bei dem Angebot um einen Neubau, erfolgt die Vorlage des Energieausweises durch den Bauherren unverzüglich nach Fertigstellung, da der Energieausweis die tatsächlichen energetischen Eigenschaften des fertiggestellten Gebäudes aufweisen muss..
Für die steuerlichen Konsequenzen aus der Entscheidung zum Kauf empfiehlt es sich, vor dem Abschluss eines Kaufvertrages einen Steuerberater des Vertrauens zu Rate zu ziehen. Mit diesem Angebotsprofil werden ausschließlich Auskünfte zu der angebotenen Immobilie erteilt. Seitens der Maklerin, Initiatorin, Prospektherausgeberin und oder Verkäuferin wird keine Rechts-, Steuer-, Finanzierungs-, Kapitalanlage- oder Wirtschaftsberatung erbracht.
Da wir Objektangaben nicht selbst ermitteln, übernehmen wir hierfür keine Gewähr. Alle Angaben basieren ausschließlich auf Informationen, die uns von unserem Auftraggeber zur Verfügung gestellt wurden. Dieses Exposé ist nur für Sie persönlich bestimmt. Eine Weitergabe an Dritte ist an unsere ausdrückliche Zustimmung gebunden und unterbindet nicht unseren Provisionsanspruch bei Zustandekommen eines Vertrages. Alle Gespräche sind über unser Büro zu führen. Bei Zuwiderhandlung behalten wir uns Schadenersatz bis zur Höhe der Provisionsansprüche ausdrücklich vor. Zwischenverkauf ist nicht ausgeschlossen. Die Grunderwerbsteuer, Notar- und Grundbuchkosten sind vom Käufer zu tragen. Im Übrigen gelten unsere Allgemeinen Geschäftsbedingungen. Irrtum und Zwischenverkauf vorbehalten.
Unsere Kaufinteressenten erklären sich damit einverstanden, dass Ihre an uns übermittelten Daten elektronisch erhoben und gespeichert werden. Die Daten werden nur zu Zwecken der Bearbeitung und Beantwortung Ihrer konkreten Anfrage genutzt. Sie können diese Einwilligung jederzeit durch eine Nachricht an uns widerrufen. Im Falle des Widerrufs werden Ihre Daten umgehend gelöscht, soweit gesetzliche Vorschriften nicht lediglich die Sperrung der Daten vorsehen. Weitere Informationen entnehmen Sie bitte unserer Datenschutzerklärung unter http://www.nachhause-immobilien.de.
Kontakt aufnehmen
Sie Suchen eine Immobilie oder möchten verkaufen?
Kontaktieren Sie uns!
Nach Hause Immobilien
GmbH & Co. KG
Froschkönigweg 1
04277 Leipzig
Tel. 0341 86721235
Fax 0341 8605967









































