Idyllische Parks und märchenhafte Atmosphäre
Hübsches Reihenendhaus in der Gartenstadt
Objektnummer: 1829
122 m2
Wohnfläche
437 m2
Grundstück
1
Wohneinheiten
320.000 EUR
Kaufpreis
Objektbeschreibung
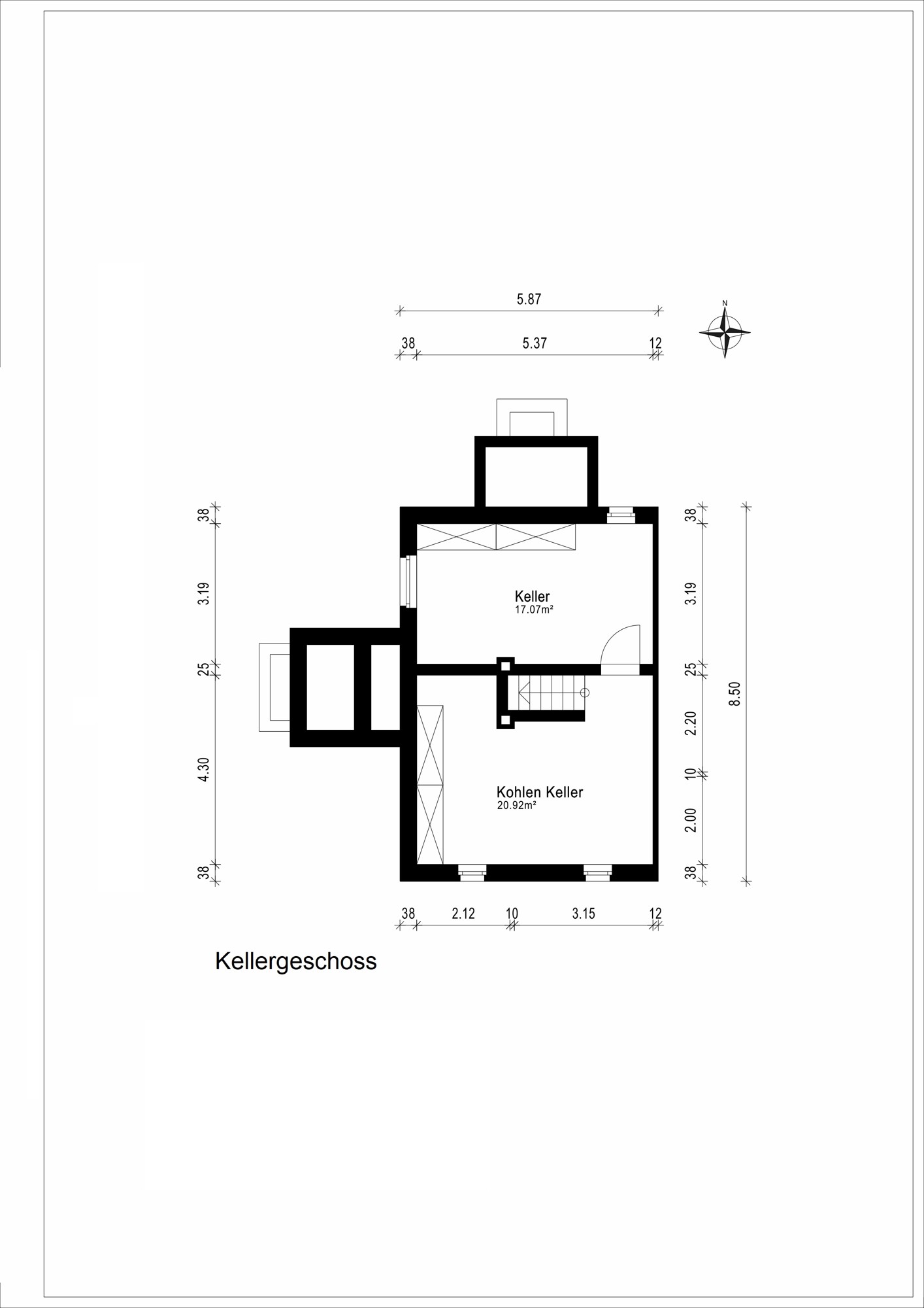
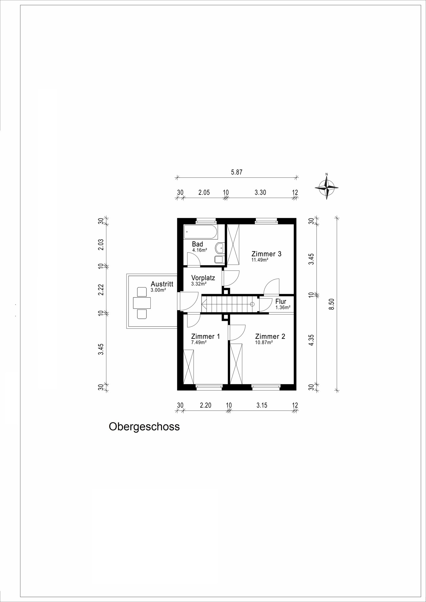
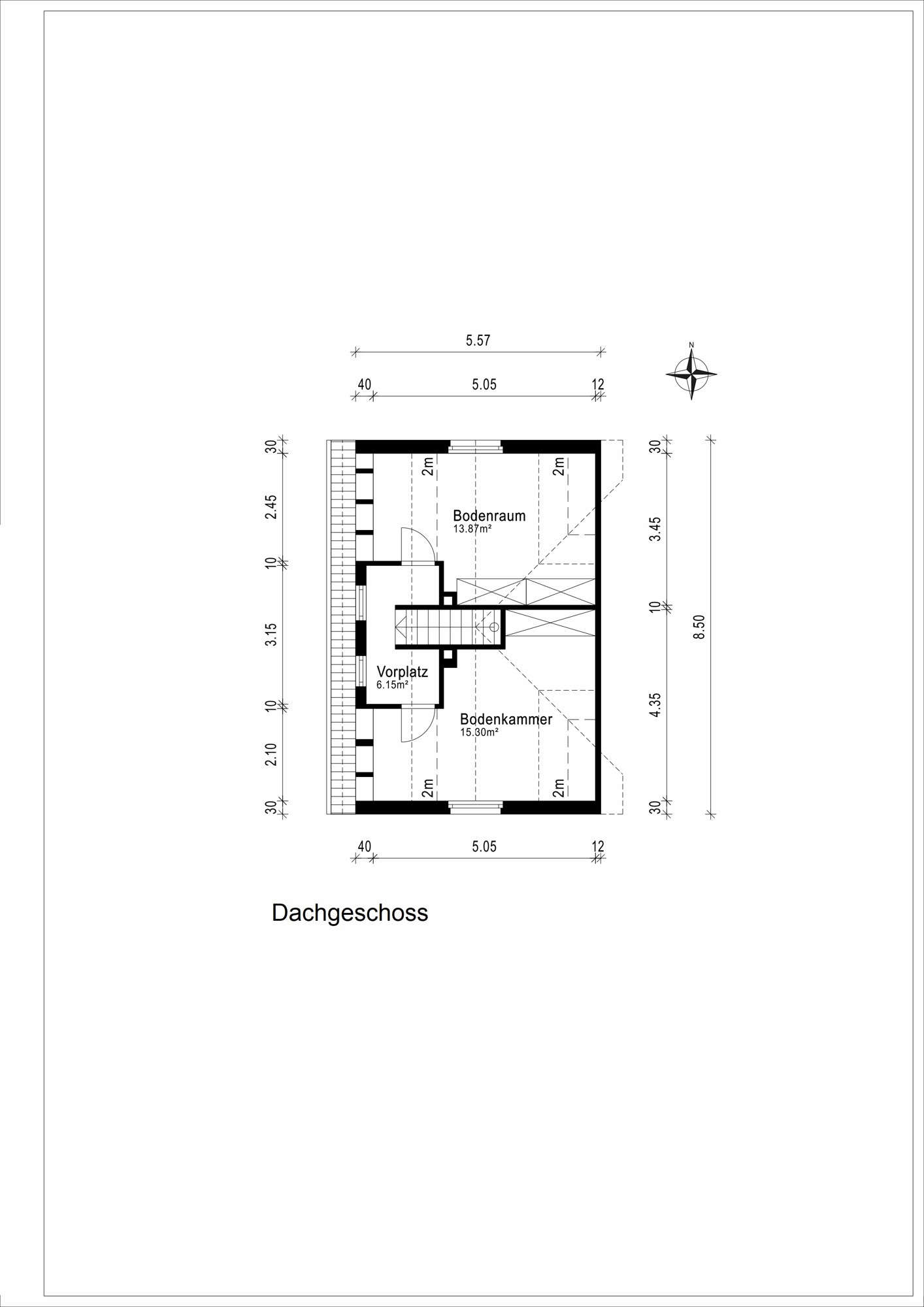
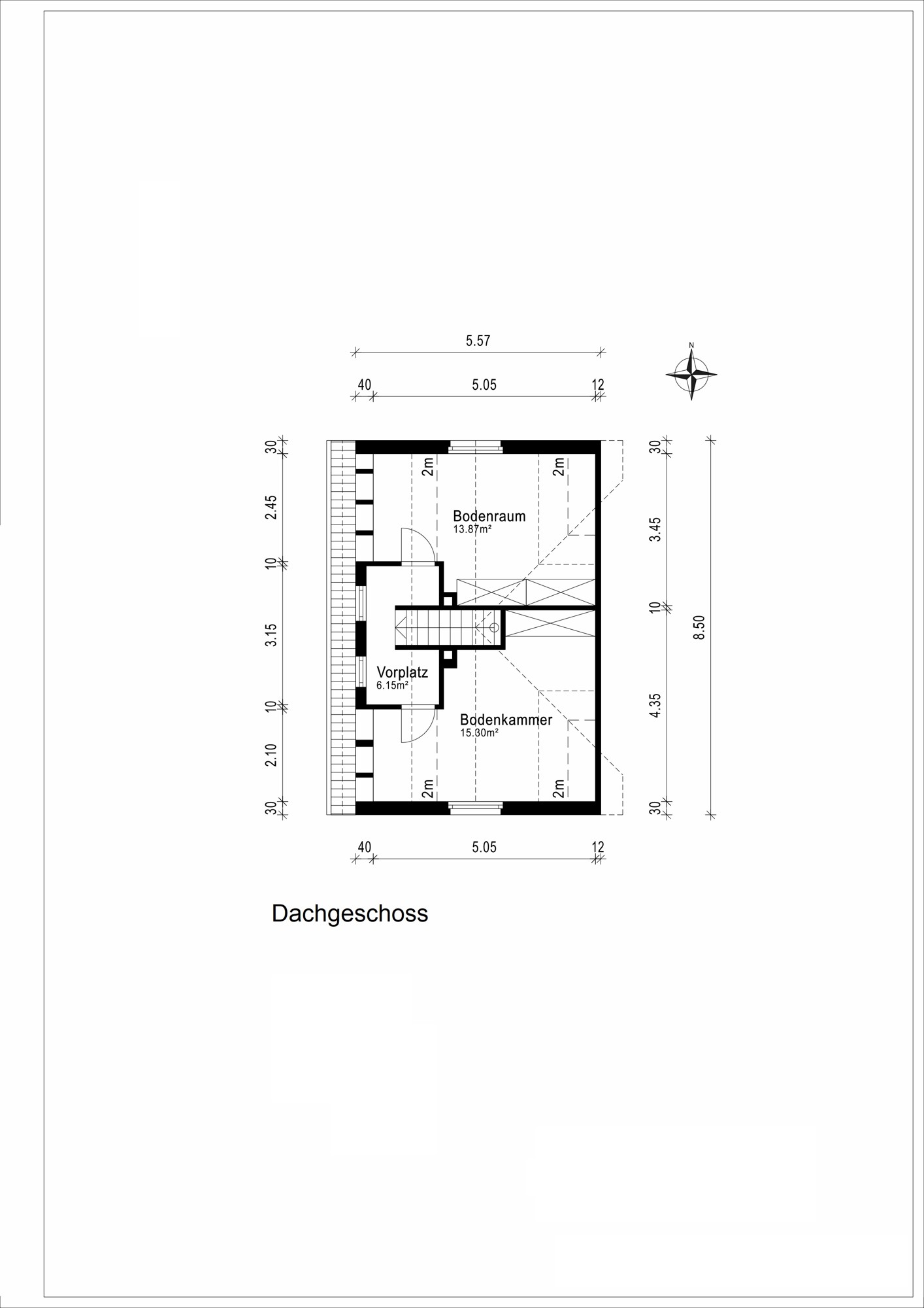
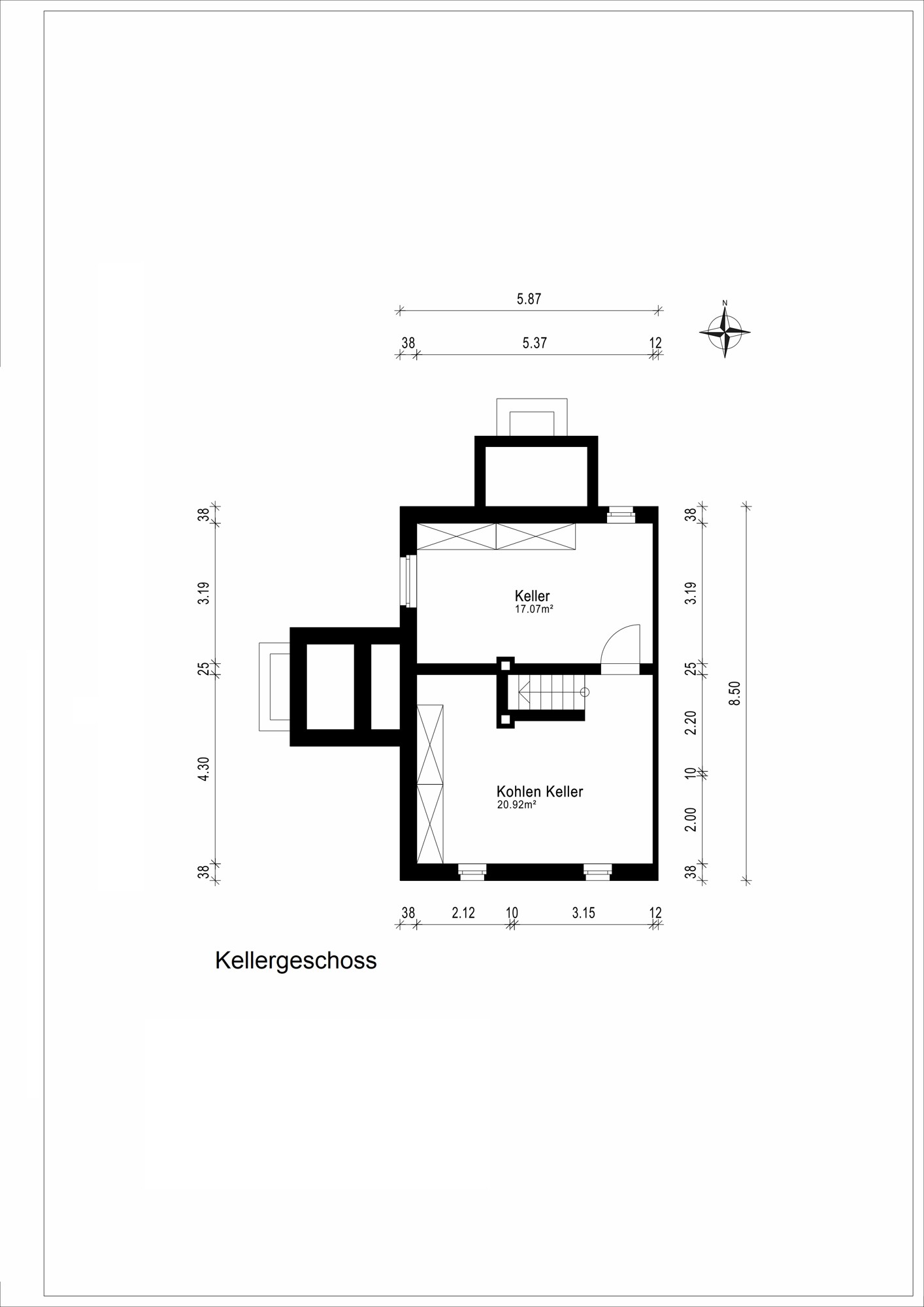
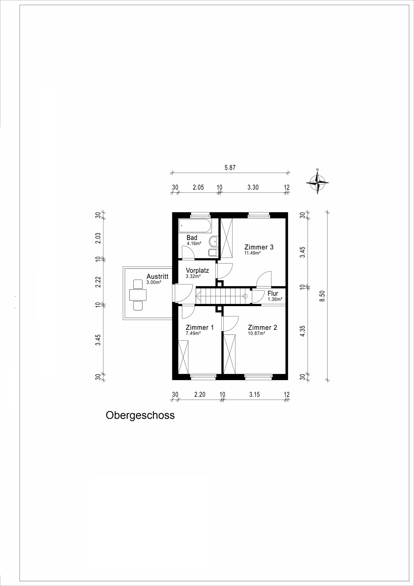
Das Baujahr des Hauses liegt im Jahr 1925. Die unterkellerte Immobilie erstreckt sich über drei Etagen. Mit einer Wohnfläche von 122,00 m² bietet das Haus ausreichend Platz für eine kleine Familie.
Das Haus ist renovierungsbedürftig, was Ihnen die Möglichkeit gibt, Ihre eigenen Vorstellungen und Ideen in die Gestaltung einzubringen. Es verfügt über insgesamt vier Zimmer, darunter zwei Schlafzimmer. Des Weiteren gibt es ein Badezimmer und ein Gäste-WC. Die Bauweise des Hauses ist massiv, was für eine solide und langlebige Konstruktion spricht. Ein weiteres Highlight ist der Balkon, der nach einer notwendigen Sanierung einen atemberaubenden Blick über das märchenhafte Marienbrunn bis hin zum Völkerschlachtdenkmal bietet.
Das Haus befindet sich aktuell in einer einfachen Ausstattungsqualität, was Ihnen die Möglichkeit gibt, die Räume nach Ihren eigenen Wünschen und Bedürfnissen zu gestalten. Die Verfügbarkeit des Hauses ist nach Absprache möglich.
Wenn Sie auf der Suche nach einem renovierungsbedürftigen Einfamilienhaus sind und die Möglichkeit schätzen, Ihre eigenen Ideen und Vorstellungen in die Gestaltung einzubringen, dann könnte dieses denkmalgeschützte Haus in Leipzig-Marienbrunn genau das Richtige für Sie sein. Kontaktieren Sie uns gerne für weitere Informationen oder eine Besichtigung.
Eine Besichtigung des Hauses ist nach Absprache jederzeit möglich. Überzeugen Sie sich selbst von diesem einzigartigen Objekt und vereinbaren Sie noch heute einen Termin mit uns. Wir freuen uns darauf, Ihnen das Haus persönlich präsentieren zu dürfen.
Nutzen Sie gerne unser Netzwerk für eine Energie- und Finanzierungsberatung und decken Sie auch für Ihr neues Zuhause die möglichen Einsparpotenziale auf.
Fordern Sie unverbindlich die digitale Hausakte zu diesem Objekt an und Sie erhalten alle entscheidenden Informationen zu diesem Immobilienangebot! Wenn Sie weitere Fragen haben oder eine Besichtigung wünschen, rufen Sie uns an.
Haben Sie ein anderes Anliegen oder wollen Sie Ihre eigene Immobilie verkaufen? Wie können wir Sie dabei unterstützen? Nutzen Sie ganz einfach unser Bewertungstool unter immobilienpreis-leipzig.com und ermitteln Sie noch heute den Verkaufspreis für Ihr Haus: 100% kostenlos und unverbindlich. Welches Immobilienanliegen Sie auch haben. Wir sind für Sie da!
Gerne begleiten wir Sie durch alle Prozesse und stehen Ihnen für Ihre Fragen im Büro zur Verfügung, auch wenn Sie selbst an den Verkauf Ihres Grundbesitzes denken oder eine Bewertung Ihrer Immobilie wünschen. Und falls die Immobilie Ihren Vorstellungen nicht gänzlich entspricht, suchen wir weiter nach einer passenden Immobilie für Sie. Senden Sie uns gerne die für Sie wichtigen Kriterien zu Ihrer Wunschimmobilie.
Herzlichst, Ihre Maklerinnen
Auf Wunsch besprechen unsere Partner von der Finanzierungsabteilung mit Ihnen auch gute Konzepte und Konditionen zur Finanzierung Ihrer neuen Wohnimmobilie.
Folgen Sie uns auch in den sozialen Medien Instagram, TikTok, Facebook und LinkedIn … und Sie bleiben am Ball!
Beschreibung der Lage
Marienbrunn, im Süden Leipzigs gelegen, ist ein Wohngebiet des Stadtteils Connewitz und umfasst primär die Siedlungen Marienbrunn und Mariental. Und es ist eine "Gartenstadt": Viel Grün säumt hier die Straßen mit den Ein- und Mehrfamilienhäusern. Gärten mit knackig roten Apfelbäumen und Pflanzen in prächtig blühenden Farben versprechen eine angenehm-harmonische Wohnatmosphäre.
Die Gartenvorstadt Marienbrunn, errichtet in der Tradition der englischen Gartenstädte, entstand als Mustersiedlungsprojekt zur Internationalen Baufachausstellung im Jahr 1913. Der kleinstädtische Charakter von Marienbrunn ist bis heute erhalten geblieben. In den engen, begrünten Straßenzügen mit ihren kleinen Häuserzeilen entsteht zuweilen eine märchenhafte Atmosphäre.
Fährt man mit den Tramlinien 10 oder 16 in Richtung Lößnig, so erreicht man kurz vor der Endhaltestelle das grüne Marienbrunn. Man kann am Triftweg aussteigen oder, besser noch, An der Märchenwiese. In der Siedlung Mariental wird man von wohlklingende Namen empfangen: Der Erlkönig, das Schneewittchen oder Rübezahl sind nur drei der fabelhaften Wesen, deren Namen sich auf den blau-weißen Straßenschildern wiederfinden. (Übrigens fahren auch die S-Bahn-Linie 1 und der Bus Nr. 70 durch Marienbrunn).
Die Straße An der Märchenwiese beschreibt eine rechteckige Form, in deren Mitte sich ein kleiner Park befindet; die Straßen der "Gartenstadt" gehen von dieser Grünfläche ab und präsentieren sich dabei ausgesprochen attraktiv. Hier erlangt man einen ruhigen und beschaulichen Wohneindruck. Der großstädtische Straßenverkehr ist weit entfernt, und das Rauschen der Baumwipfel verführt mit fast schon ländlichem Charme.
Etwas nördlich der Märchenwiese befindet sich der Sandmännchenweg mit seinen geräumig angeordneten Neubauten, die sich ebenfalls inmitten grüner Umgebung befinden. Dahinter wiederum lassen sich bereits aus der Ferne zwei Punkthochhäuser erkennen, die das landschaftliche Bild des Viertels gleichermaßen prägen. Die Siedlung an der Tabaksmühle befindet sich in der Nähe der gleichnamigen Straße (An der Tabaksmühle), die direkt zum Völkerschlachtdenkmal führt.
Einkaufsmöglichkeiten aller Art lassen sich im sagenhaften Viertel problemlos finden. Die Magistrale Zwickauer Straße, die das Viertel durchzieht, ist dabei wichtiger Anlaufpunkt. Supermärkte und diverse andere Ladengeschäfte sind günstig verteilt und garantieren den zumeist langjährigen Bewohnern von Marienbrunn eine optimale Versorgungssituation.
Marienbrunn erstreckt sich nahezu parallel zum Südfriedhof, einem der schönsten Parkfriedhöfe Deutschlands, der wiederum unmittelbar an das Völkerschlachtdenkmal anschließt. Marienbrunn ist ein ganz wunderbares Leipziger Stadtviertel - in attraktiver Lage lässt es sich hier entspannt leben. Und in nur wenigen Minuten erreichen Sie die City der Messemetropole Leipzig.
Rechtliches
Dieses Exposee ist eine Vorinformation. Als Rechtsgrundlage gilt allein der notarielle Kaufvertrag.
Energiebedarf (EnEV 2014): Sollte Ihnen aktuell kein Energieausweis angezeigt werden, so wird spätestens bei der Besichtigung ein Energieausweis vorliegen. Handelt es sich bei dem Angebot um eine denkmalgeschützte Immobilie, ist diese von der Ausweispflicht ausgenommen. EnEV § 16, Absatz 5 S. 2 stellt Baudenkmäler ausdrücklich von der Verpflichtung zur Vorlage/Übergabe eines Energieausweises bei Verkauf und Vermietung frei. Handelt es sich bei dem Angebot um einen Neubau, erfolgt die Vorlage des Energieausweises durch die Bauherren unverzüglich nach Fertigstellung, da der Energieausweis die tatsächlichen energetischen Eigenschaften des fertiggestellten Gebäudes aufweisen muss.
Für die steuerlichen Konsequenzen aus der Entscheidung zum Kauf empfiehlt es sich, vor dem Abschluss eines Kaufvertrages einen Steuerberater des Vertrauens zu Rate zu ziehen. Mit diesem Angebotsprofil werden ausschließlich Auskünfte zu der angebotenen Immobilie erteilt. Seitens der Maklerin, Initiatorin, Prospektherausgeberin und oder Verkäuferin wird keine Rechts-, Steuer-, Finanzierungs-, Kapitalanlage- oder Wirtschaftsberatung erbracht.
Die in diesem Exposee ausgewiesene Maklerprovision inkl. der gesetzlichen Mehrwertsteuer auf den Kaufpreis ist mit dem Zustandekommen des Kaufvertrages (notarieller Vertragsabschluss) verdient und fällig. Die Vermittelnden und/oder Nachweisenden, Nach Hause Immobilien GmbH & Co. KG, erhalten einen unmittelbaren Zahlungsanspruch gegenüber dem Käufer (Vertrag zugunsten Dritter, § 328 BGB). Sollte das nachgewiesene Objekt innerhalb eines Jahres privat erworben werden, so ist die Maklergebühr ebenfalls in voller Höhe an die Nach Hause Immobilien GmbH & Co. KG zu zahlen. Die Höhe der Bruttocourtage unterliegt einer Anpassung bei Steuersatzänderung. Von einer späteren Vertragsauflösung bleibt unser Provisionsanspruch unberührt, sofern die Vertragsauflösung aus einem Grund erfolgte, den die Nach Hause Immobilien GmbH & Co. KG nicht zu vertreten hat. Wir haben mit dem Eigentümer einen provisionspflichtigen Vertrag in gleicher Höhe abgeschlossen.
Da wir Objektangaben nicht selbst ermitteln, übernehmen wir hierfür keine Gewähr. Alle Angaben basieren ausschließlich auf Informationen, die uns von unserem Auftraggeber zur Verfügung gestellt wurden. Dieses Exposee ist nur für Sie persönlich bestimmt. Eine Weitergabe an Dritte ist an unsere ausdrückliche Zustimmung gebunden und unterbindet nicht unseren Provisionsanspruch bei Zustandekommen eines Vertrages. Alle Gespräche sind über unser Büro zu führen. Bei Zuwiderhandlung behalten wir uns Schadenersatz bis zur Höhe der Provisionsansprüche ausdrücklich vor. Zwischenverkauf ist nicht ausgeschlossen. Die Grunderwerbsteuer, Notar- und Grundbuchkosten sind vom Käufer zu tragen. Im Übrigen gelten unsere Allgemeinen Geschäftsbedingungen. Irrtum und Zwischenverkauf vorbehalten.
Unsere Kaufinteressenten erklären sich damit einverstanden, dass Ihre an uns übermittelten Daten elektronisch erhoben und gespeichert werden. Die Daten werden nur zu Zwecken der Bearbeitung und Beantwortung Ihrer konkreten Anfrage genutzt. Sie können diese Einwilligung jederzeit durch eine Nachricht an uns widerrufen. Im Falle des Widerrufs werden Ihre Daten umgehend gelöscht, soweit gesetzliche Vorschriften nicht lediglich die Sperrung der Daten vorsehen. Weitere Informationen entnehmen Sie bitte unserer Datenschutzerklärung unter http://www.nachhause-immobilien.de.
Kontakt aufnehmen
Sie Suchen eine Immobilie oder möchten verkaufen?
Kontaktieren Sie uns!
Nach Hause Immobilien
GmbH & Co. KG
Froschkönigweg 1
04277 Leipzig
Tel. 0341 86721235
Fax 0341 8605967






































