Im Zentrum der Gartenvorstadt
Einfamilienwohnhaus am historischen Arminiushof
Objektnummer: 1835
120 m2
Wohnfläche
235 m2
Grundstück
1
Wohneinheiten
430.000 EUR
Kaufpreis
Objektbeschreibung
Die Immobilie stellt ein Einzeldenkmal in einer aus zwölf Häusern bestehenden, zweigeschossigen Wohnhausgruppe im Reform- und Heimatstil dar und ist städtebaulich, baugeschichtlich und sozialgeschichtlich von Bedeutung. Sie wurde im Jahr 1912 nach Plänen des Architekturbüros Weidenbach und Tschammer errichtet.
Dieses beeindruckende Denkmalschutzensemble legt Zeugnis ab, wie werthaltig und beständig in dieser Epoche gebaut wurde. Das Objekt ist unterkellert und bietet mit Vor- und Hausgarten ca. 235 m² Grundstücksfläche.
Die zum Verkauf stehende Immobilie wurde 1912 erbaut und erstreckt sich über drei Geschosse. Ihr neues Zuhause bietet viel Raum zur individuellen Gestaltung. Die zu erwartenden Renovierungs- oder Sanierungsarbeiten wurden bei der Kaufpreisbildung bereits berücksichtigt.
Renovieren bedeutet einfach nur verschönern. Eine Sanierung umfasst Reparaturarbeiten. Beispielsweise ist die Elektrik veraltet, hier wird es Zeit für eine Sanierung. Und sollten Sie sich dafür entscheiden, die historischen Fenster zu modernisieren, können dese Fenster energetisch ertüchtigt werden, so, dass das denkmalgeschützte Original erhalten bleibt.
Wenn Sie Ihr neues Zuhause aufwerten, dann mit Modernisierungsmaßnahmen. So können Sie mit einer effizienten, neuen Heizungsanlage bis zu 30% Heizkosten sparen. Eine Ölheizung nach 30 Jahren Laufzeit auszutauschen ist für alle, die eine hohe Belastung der Umwelt vermeiden wollen, die richtige Entscheidung.
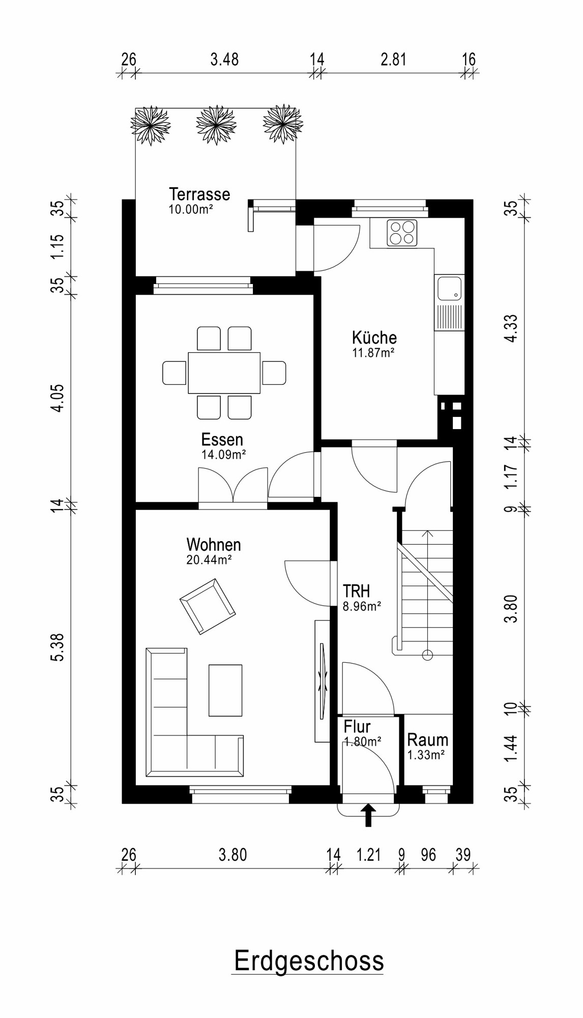
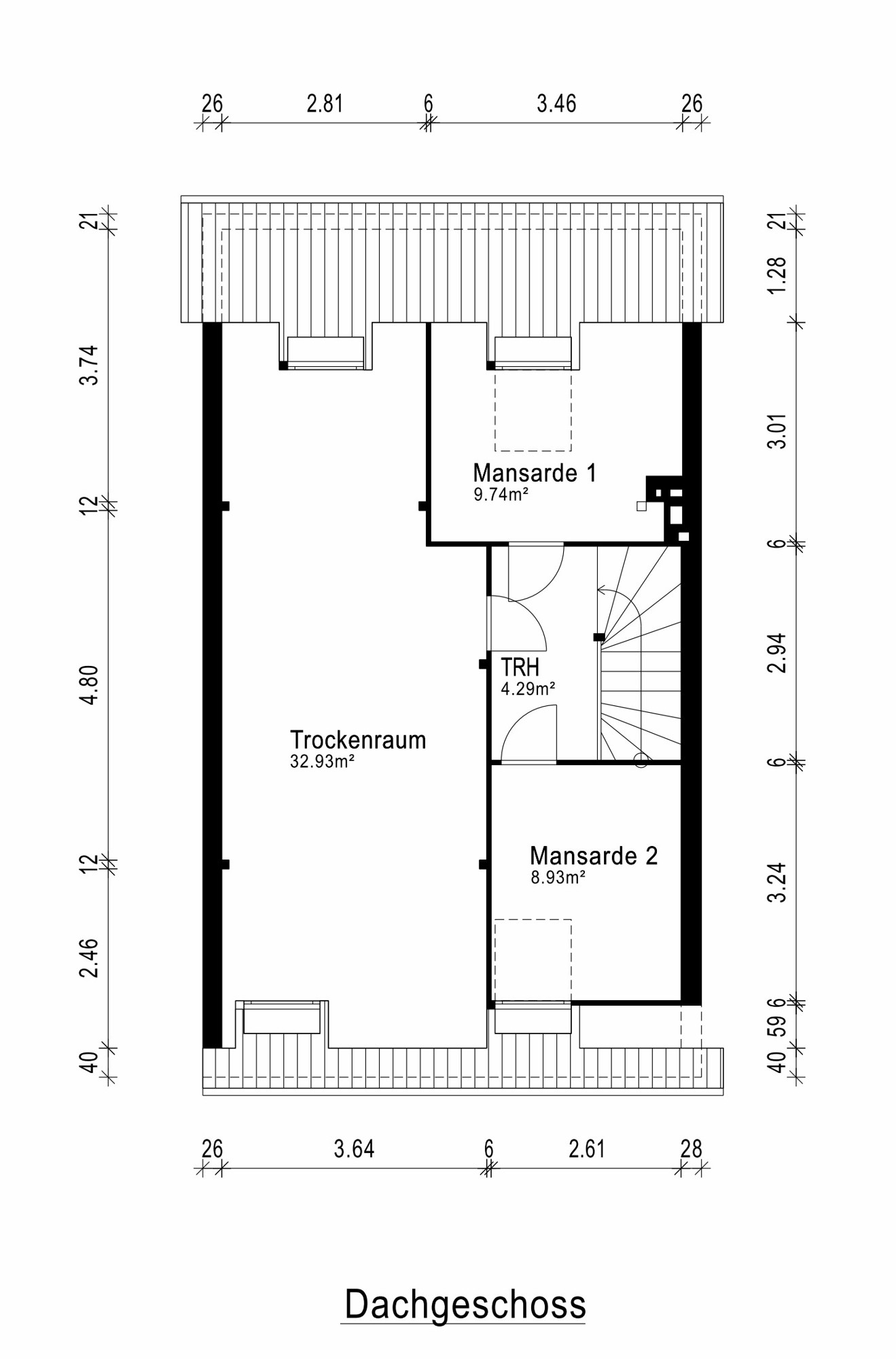
Das Wohnhaus verfügt über insgesamt fünf Zimmer, darunter zwei Schlafzimmer und ein Badezimmer mit Badewanne sowie ein Duschbad im Kellergeschoss. Darüber im Erdgeschoss könnte ein zusätzliches Gäste-WC installiert werden. Zudem gibt es eine große Sonnen-Terrasse und einen Balkon, die zum gemütlichen Verweilen im Freien einladen.
Das Objekt ist massiv gebaut und verfügt über einen Keller. 2014 wurde die Immobilie mittels einer Ausschachtung trockengelegt. Die Fassade wurde im Jahr 1996 neu verputzt und gestrichen. Im Jahr 2006 fand die letzte Modernisierung statt. Im Rahmen dieser Modernisierung wurden die Dachfenster und die Kellerfenster erneuert. Und die brusthohe Ziegelmauer vor dem Vorgarten wurde im Jahr 2007 denkmalgerecht saniert. Türen und Fenster wurden im Jahr 2012 aufgearbeitet. Die aktuelle Ausstattungsqualität ist eher einfach gehalten.
Mit Ihrer Liebe zu Marienbrunn, mit Ihrer Kreativität und Ihrem Anspruch dürfen Sie diese Immobilie ins 21. Jahrhundert führen. Für den Erwerber bedeutet dies Wohnkomfort auf höchstem Niveau.
Das Haus befindet sich in einer attraktiven Lage in Leipzig und bietet eine gute Anbindung an die umliegenden Stadtteile. Einkaufsmöglichkeiten, Schulen und öffentliche Verkehrsmittel sind in der Nähe vorhanden.
Wollen Sie den einzigartigen geschichtlichen Reiz dieser Immobilie in die Moderne transportieren? Sie können uns gerne anrufen: +49 341 86721235.
Eine Besichtigung des Hauses ist nach Absprache jederzeit möglich. Überzeugen Sie sich selbst von diesem einzigartigen Objekt und vereinbaren Sie noch heute einen Termin mit uns. Wir freuen uns darauf, Ihnen das Haus persönlich präsentieren zu dürfen.
Beschreibung der Lage
Marienbrunn, im Süden Leipzigs gelegen, ist ein Wohngebiet des Stadtteils Connewitz und umfasst primär die Siedlungen Marienbrunn und Mariental. Und es ist eine "Gartenstadt": Viel Grün säumt hier die Straßen mit den Ein- und Mehrfamilienhäusern. Gärten mit knackig roten Apfelbäumen und Pflanzen in prächtig blühenden Farben versprechen eine angenehm-harmonische Wohnatmosphäre.
Der Arminiushof ist das Zentrum der Gartenvorstadt Marienbrunn. Diese entstand 1912/13 aus Anlass der Internationalen Baufachausstellung. Den Gartenstadtgedanken entwickelten fortschrittliche Architekten zur Jahrhundertwende, um günstige und großzügige Reihenhäuser zu errichten.
Der kleinstädtische Charakter von Marienbrunn ist bis heute erhalten geblieben. In den engen, begrünten Straßenzügen mit ihren kleinen Häuserzeilen entsteht zuweilen eine märchenhafte Atmosphäre.
Fährt man mit den Tramlinien 10 oder 16 in Richtung Lößnig, so erreicht man kurz vor der Endhaltestelle das grüne Marienbrunn. Man kann am Triftweg aussteigen oder, besser noch, An der Märchenwiese. In der Siedlung Mariental wird man von wohlklingende Namen empfangen: Der Erlkönig, das Schneewittchen oder Rübezahl sind nur drei der fabelhaften Wesen, deren Namen sich auf den blau-weißen Straßenschildern wiederfinden. (Übrigens fahren auch die S-Bahn-Linie 1 und der Bus Nr. 70 durch Marienbrunn).
Die Straße An der Märchenwiese beschreibt eine rechteckige Form, in deren Mitte sich ein kleiner Park befindet; die Straßen der "Gartenstadt" gehen von dieser Grünfläche ab und präsentieren sich dabei ausgesprochen attraktiv. Hier erlangt man einen ruhigen und beschaulichen Wohneindruck. Der großstädtische Straßenverkehr ist weit entfernt, und das Rauschen der Baumwipfel verführt mit fast schon ländlichem Charme.
Etwas nördlich der Märchenwiese befindet sich der Sandmännchenweg mit seinen geräumig angeordneten Neubauten, die sich ebenfalls inmitten grüner Umgebung befinden. Dahinter wiederum lassen sich bereits aus der Ferne zwei Punkthochhäuser erkennen, die das landschaftliche Bild des Viertels gleichermaßen prägen. Die Siedlung an der Tabaksmühle befindet sich in der Nähe der gleichnamigen Straße (An der Tabaksmühle), die direkt zum Völkerschlachtdenkmal führt.
Einkaufsmöglichkeiten aller Art lassen sich im sagenhaften Viertel problemlos finden. Die Magistrale Zwickauer Straße, die das Viertel durchzieht, ist dabei wichtiger Anlaufpunkt. Supermärkte und diverse andere Ladengeschäfte sind günstig verteilt und garantieren den zumeist langjährigen Bewohnern von Marienbrunn eine optimale Versorgungssituation.
Marienbrunn erstreckt sich nahezu parallel zum Südfriedhof, einem der schönsten Parkfriedhöfe Deutschlands, der wiederum unmittelbar an das Völkerschlachtdenkmal anschließt. Marienbrunn ist ein ganz wunderbares Leipziger Stadtviertel - in attraktiver Lage lässt es sich hier entspannt leben. Und in nur wenigen Minuten erreichen Sie die City der Messemetropole Leipzig.
Rechtliches
Dieses Exposee ist eine Vorinformation. Als Rechtsgrundlage gilt allein der notarielle Kaufvertrag.
Energiebedarf (EnEV 2014): Sollte Ihnen aktuell kein Energieausweis angezeigt werden, so wird spätestens bei der Besichtigung ein Energieausweis vorliegen. Handelt es sich bei dem Angebot um eine denkmalgeschützte Immobilie, ist diese von der Ausweispflicht ausgenommen. EnEV § 16, Absatz 5 S. 2 stellt Baudenkmäler ausdrücklich von der Verpflichtung zur Vorlage/Übergabe eines Energieausweises bei Verkauf und Vermietung frei. Handelt es sich bei dem Angebot um einen Neubau, erfolgt die Vorlage des Energieausweises durch die Bauherren unverzüglich nach Fertigstellung, da der Energieausweis die tatsächlichen energetischen Eigenschaften des fertiggestellten Gebäudes aufweisen muss.
Für die steuerlichen Konsequenzen aus der Entscheidung zum Kauf empfiehlt es sich, vor dem Abschluss eines Kaufvertrages einen Steuerberater des Vertrauens zu Rate zu ziehen. Mit diesem Angebotsprofil werden ausschließlich Auskünfte zu der angebotenen Immobilie erteilt. Seitens der Maklerin, Initiatorin, Prospektherausgeberin und oder Verkäuferin wird keine Rechts-, Steuer-, Finanzierungs-, Kapitalanlage- oder Wirtschaftsberatung erbracht.
Die in diesem Exposee ausgewiesene Maklerprovision inkl. der gesetzlichen Mehrwertsteuer auf den Kaufpreis ist mit dem Zustandekommen des Kaufvertrages (notarieller Vertragsabschluss) verdient und fällig. Die Vermittelnden und/oder Nachweisenden, Nach Hause Immobilien GmbH & Co. KG, erhalten einen unmittelbaren Zahlungsanspruch gegenüber dem Käufer (Vertrag zugunsten Dritter, § 328 BGB). Sollte das nachgewiesene Objekt innerhalb eines Jahres privat erworben werden, so ist die Maklergebühr ebenfalls in voller Höhe an die Nach Hause Immobilien GmbH & Co. KG zu zahlen. Die Höhe der Bruttocourtage unterliegt einer Anpassung bei Steuersatzänderung. Von einer späteren Vertragsauflösung bleibt unser Provisionsanspruch unberührt, sofern die Vertragsauflösung aus einem Grund erfolgte, den die Nach Hause Immobilien GmbH & Co. KG nicht zu vertreten hat. Wir haben mit dem Eigentümer einen provisionspflichtigen Vertrag in gleicher Höhe abgeschlossen.
Da wir Objektangaben nicht selbst ermitteln, übernehmen wir hierfür keine Gewähr. Alle Angaben basieren ausschließlich auf Informationen, die uns von unserem Auftraggeber zur Verfügung gestellt wurden. Dieses Exposee ist nur für Sie persönlich bestimmt. Eine Weitergabe an Dritte ist an unsere ausdrückliche Zustimmung gebunden und unterbindet nicht unseren Provisionsanspruch bei Zustandekommen eines Vertrages. Alle Gespräche sind über unser Büro zu führen. Bei Zuwiderhandlung behalten wir uns Schadenersatz bis zur Höhe der Provisionsansprüche ausdrücklich vor. Zwischenverkauf ist nicht ausgeschlossen. Die Grunderwerbsteuer, Notar- und Grundbuchkosten sind vom Käufer zu tragen. Im Übrigen gelten unsere Allgemeinen Geschäftsbedingungen. Irrtum und Zwischenverkauf vorbehalten.
Unsere Kaufinteressenten erklären sich damit einverstanden, dass Ihre an uns übermittelten Daten elektronisch erhoben und gespeichert werden. Die Daten werden nur zu Zwecken der Bearbeitung und Beantwortung Ihrer konkreten Anfrage genutzt. Sie können diese Einwilligung jederzeit durch eine Nachricht an uns widerrufen. Im Falle des Widerrufs werden Ihre Daten umgehend gelöscht, soweit gesetzliche Vorschriften nicht lediglich die Sperrung der Daten vorsehen. Weitere Informationen entnehmen Sie bitte unserer Datenschutzerklärung unter http://www.nachhause-immobilien.de.
Kontakt aufnehmen
Sie Suchen eine Immobilie oder möchten verkaufen?
Kontaktieren Sie uns!
Nach Hause Immobilien
GmbH & Co. KG
Froschkönigweg 1
04277 Leipzig
Tel. 0341 86721235
Fax 0341 8605967































