Der Schatz am Silbersee
Doppelhaushälfte mit Garage und großem Grundstück
Objektnummer: 188
5
Zimmer
130 m2
Wohnfläche
505 m2
Grundstück
4
Schlafzimmer
2
Badezimmer
338.000 EUR
Kaufpreis
Objektbeschreibung
Das Haus ist in massiver Bauweise errichtet und voll unterkellert. Der Zugang erfolgt frontal über eine kleine Eingangstreppe. Eine Garage ist giebelseitig an das Wohnhaus angebaut und sowohl straßen – als auch gartenseitig begehbar. Entlang der gesamten Rückfront des Hauses erstreckt sich eine unterkellerte Terrasse die vom Garten aus über eine massive Außentreppe zugänglich ist. Der Garten ist sowohl von der Küche aus als auch von der Garage und vom Keller aus begehbar.
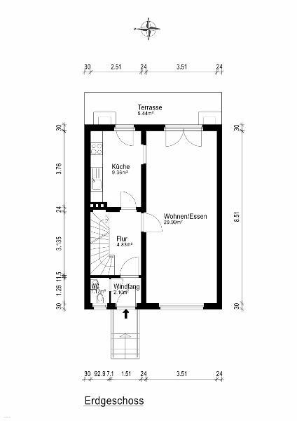
5 Zimmer sind großzügig verteilt auf 3 Etagen. Im Untergeschoss befindet sich neben Hobby- und Heizungsraum ein wellnesstempelgleiches Wannenbad. Im Erdgeschoss dominieren der Wohn- Essbereich und eine hübsche Wohnküche. Die Schlafzimmer und ein weiteres Badezimmer liegen im Obergeschoss. Das Dachgeschoss, ebenfalls mit einem WC ausgestattet, verspricht anständig Freiraum für die Heranwachsenden.
Die gesamte Wohnfläche beträgt 130 m². Mit nur wenigen Einschränkungen bietet dieses Doppelhaus mit ausreichend Wohnfläche den Wohnkomfort eines Einfamilienhauses. Sie teilen sich eine Gebäudewand und eine Grundstücksgrenze mit Ihrem Nachbarn. Der positive Nebeneffekt: An der geteilten Wand der Doppelhaushälfte gibt es so gut wie keine Wärmeverluste. Bautechnisch wurde bei dieser Doppelhaushälfte besonders auf eine gründliche Schallisolierung der gemeinsamen Wand geachtet. Das Grundstück ist, wie sehr oft bei Doppelhaushälften, mit ca. 500 m² wesentlich größer als das eines Reihenhauses, der Grundriss individueller zu gestalten. Das Miteinander der Nachbarn wird als sehr freundlich bewertet, das nachbarschaftliche Zusammenleben in dieser Straße werden Sie mögen.
Das zum Verkauf stehende Eigenheim ist ausgestattet mit einem Dachs, ein Heizsystem, das umweltfreundlichen Strom erzeugen kann. Der Hochleistungs-Generator im Dachs erzeugt den Strom genau dort, wo er verbraucht wird in der Immobilie und eignet sich gerade deshalb ideal für die Energieversorgung von Einfamilienhäusern mit geringem Wärmebedarf. Der Dachs, die Kraft-Wärme-Kopplung (auch BHKW genannt) ist auf die energieeffiziente Versorgung von modernen Ein- und Zweifamilienhäusern ausgerichtet und zählt heute als die dritte Kraft im Bunde der alternativen Energieerzeuger.
Im Fazit verspricht die angebotene Doppelhaushälfte einen hohen Wohnstandard mit nichtigem Modernisierungspotenzial. Geeignet für: Familien mit Kindern, für Gartenliebhaber und Fans des deutschen Schriftstellers Karl May.
Überzeugen Sie sich selbst und vereinbaren Sie mit uns einen unverbindlichen Besichtigungstermin.
Beschreibung der Lage
"Es war um die Mittagszeit eines sehr heißen Junitags, als der »Dogfish«, einer der größten Passagier- und Güterdampfer des Arkansas, mit seinen mächtigen Schaufelrädern die Fluten des Stromes peitschte. Er hatte am frühen Morgen Little Rock verlassen und sollte nun bald Lewisburg erreichen, um dort anzulegen, falls neue Passagiere oder Güter aufzunehmen seien."
Der Schatz am Silbersee ... eine außerordentlich gepflegte Doppelhaushälfte mit Garage und großem Grundstück liegt ganz in der Nähe von Leipzigs größter Parkanlage, dem Erholungspark Lößnig-Dölitz, in Lößnig, einem Stadtteil im Süden von Leipzig. Der Erholungspark Lößnig-Dölitz ist eine der jüngsten und größten Parkanlagen in Leipzig. Er entstand auf einem Gelände, unter dem ehemals untertägiger Braunkohleabbau betrieben wurde. Der Park ist ein weitläufiges von Einzelbäumen und Baumgruppen bestandenes und von Wasserflächen durchsetztes Wiesengelände mit unterschiedlichen Erlebnisbereichen.
Der Erholungspark Lößnig-Dölitz wird im Norden begrenzt durch das Neubaugebiet Lößnig, Kleingärten, einen Sportplatz und die Connewitzer Straße, im Osten durch zu Probstheida gehörende Kleingartenanlagen, im Süden durch die Gorbitzer Straße und im Westen wiederum durch Kleingärten, die ehemalige Schachtanlage Dölitz und die Wohnbebauung des Rundlings. Er ist über die Endstelle Lößnig mit den Straßenbahnlinien 10 und 16 zu erreichen. Das Erholungsgebiet ist ein wichtiges Bindeglied im Verlauf des südöstlichen Leipziger Grünzuges, der sich von der historischen Kleingartenanlage Johannistal über den Friedenspark, den Wilhelm-Külz-Park, den Südfriedhof, das Markkleeberger Weinteichgraben-Gebiet bis hin zum Markkleeberger und dem Störmthaler See erstreckt.
Der Stadtteil Lößnig umfasst den alten Ortskern von Lößnig, die Gartenstadt Alt-Lößnig und den Rundling. Die Nachbarortsteile von Lößnig sind Marienbrunn, Probstheida, Dölitz-Dösen und Connewitz. Das Wohngebiet bietet mit dem Moritzhof ein sehr modernes Einkaufs- und Dienstleistungszentrum.
Details zur Provision
Die Courtage in Höhe von 3,57 % inkl. der gesetzlichen Mehrwertsteuer ist mit dem Zustandekommen des Kaufvertrages (notarieller Vertragsabschluß) verdient, fällig und vom Käufer zu zahlen. Die Höhe der Bruttocourtage unterliegt einer Anpassung bei Steuersatzänderung.
Rechtliches
Angeboten wird eine um 1979 erbaute, zweigeschossige, außerordentlich gepflegte Doppelhaushälfte mit Garage und großem Grundstück in Lößnig. Interessenten, die uns bekannt sind, werden automatisch über den Verkaufsstart informiert.
Kontakt aufnehmen
Sie Suchen eine Immobilie oder möchten verkaufen?
Kontaktieren Sie uns!
Nach Hause Immobilien
GmbH & Co. KG
Froschkönigweg 1
04277 Leipzig
Tel. 0341 86721235
Fax 0341 8605967

























