Für Investoren die richtige Adresse
Voll vermietetes Wohnhaus im Zentrum der Stadt Grimma
Objektnummer: 909
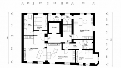
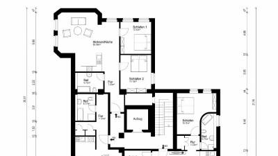
426 m2
Wohnfläche
370 m2
Grundstück
8
Wohneinheiten
395.000 EUR
Kaufpreis
Objektbeschreibung
Für Investoren ist dieses Anwesen genau die richtige Adresse. Im näheren Umkreis von bis zu 1 km waren zum Zeitpunkt unserer Recherche 7 Mehrfamilienwohnhäuser als Anlageobjekte zum Kauf verfügbar. Hiervon sind drei Gebäude (bzw. deren Wohnflächen) mit dem Bewertungsobjekt vergleichbar. Die Angebotspreise bewegen sich zwischen 900 EUR/m² und 1.200 EUR/m², im Durchschnitt 1000 EUR/m². Bei dem Anwesen Frauenstraße 22 liegt der Marktwert bei rd. 927 EUR/m², was angesichts des Baualters und des Renovierungsstaus angemessen ist und in der Bandbreite von üblichen Marktwerten für Mehrfamilienhäuser liegt.
Im Fazit befindet sich das Wohnhaus in einem gepflegten Gesamtzustand und bietet Mietern und Investoren gleichermaßen einen attraktiven Standort in einer ruhigen Lage in einer der begehrtesten Kommunen im Landkreis Leipzig.
Haben Sie weitere Fragen zu diesem Angebot, dann rufen Sie uns gerne an! Wir freuen uns darauf, diese besondere Immobilie mit Ihnen besichtigen zu dürfen.
❤ lichst
Ihre Maklerinnen
Beschreibung der Lage
Das Wohnhaus liegt im Zentrum der Stadt Grimma in der Frauenstraße, weniger als 200 m vom Marktplatz entfernt innerhalb einer geschlossenen Bebauung aus Wohn- und Geschäftshäusern. Die große Kreisstadt Grimma gilt als eine der begehrtesten Kommunen im Landkreis Leipzig. Als überregionaler Bildungsstandort bietet Grimma mit seinen zahlreichen Schulen viele Möglichkeiten zur qualifizierten Aus- und Weiterbildung. Immer mehr Menschen schätzen Grimma als kinderfreundliche und zukunftsorientierte Stadt ... das beweisen die aktuellen Zuwanderungsstatistiken.
Wo lässt es sich besser leben, als in Grimma – umgeben von Kulturdenkmalen und geschützten Landschaften, mit einem vielseitigen und weiter entwicklungsfähigen Arbeitsplatzangebot, mit hervorragender Infrastruktur und weltoffenen Bürgern. Familien schätzen vor allem das engmaschige Netz an Betreuungsstätten, Spielplätzen, Schulen, Freizeitangeboten, Vereinen sowie Sozial- und Gesundheitseinrichtungen. Die Altstadt von Grimma und ebenso die Mulde sind in wenigen Minuten fußläufig erreichbar. Mit der Zugverbindung und der Anschlussstelle zur Autobahn 14 ist eine Top Anbindung nach Leipzig und Dresden gegeben. Vom Charme der alten Garnisonsstadt ganz zu schweigen. Für Investoren also genau die richtige Adresse.
Die „Perle des Muldentales“ ist eine Bezeichnung, welche Grimma seiner historischen Altstadt verdankt. Alteingesessene Sachsen wissen, dass keine zwanzig Kilometer südöstlich von Leipzig ein kleines Paradies liegt. Nach zahlreichen Eingemeindungen im 20. und 21. Jahrhundert ist sie mittlerweile flächenmäßig die viertgrößte Stadt Sachsens. Das Stadtbild wird von zahlreichen Baudenkmälern aus verschiedenen Epochen geprägt welche der charmanten Stadt einen besonderen historischen Charakter verleihen. Die Gegend, wo die Mulde noch von lieblichen Höhenzügen umgeben ist und sich eine wunderschöne Talaue geschaffen hat, hatte die Menschen schon immer zum Niederlassen gereizt. Über die Jahrhunderte ist hier eine Kulturlandschaft gewachsen, die heute zu großen Teilen unter Schutz steht.
Details zur Provision
Die Courtage in Höhe von 5,95 % inkl. der gesetzlichen Mehrwertsteuer auf den Kaufpreis ist mit dem Zustandekommen des Kaufvertrages (notarieller Vertragsabschluss) verdient und fällig. Die Vermittelnden und/oder Nachweisenden, Nach Hause Immobilien GmbH & Co. KG, erhalten einen unmittelbaren Zahlungsanspruch gegenüber dem Käufer (Vertrag zugunsten Dritter, § 328 BGB). Sollte das nachgewiesene Objekt innerhalb eines Jahres privat erworben werden, so ist die Maklergebühr ebenfalls in voller Höhe an die Nach Hause Immobilien GmbH & Co. KG zu zahlen. Die Höhe der Bruttocourtage unterliegt einer Anpassung bei Steuersatzänderung.
Rechtliches
Angeboten wird ein voll vermietetes Wohnhaus mit 8 Wohneinheiten auf einer Gesamtfläche von ca. 426 m², mitten im Stadtzentrum von Grimma.
Kontakt aufnehmen
Sie Suchen eine Immobilie oder möchten verkaufen?
Kontaktieren Sie uns!
Nach Hause Immobilien
GmbH & Co. KG
Froschkönigweg 1
04277 Leipzig
Tel. 0341 86721235
Fax 0341 8605967













