Hohes Mietsteigerungspotential
Wohn- und Geschäftshaus mitten im Stadtzentrum
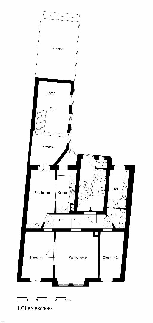
Objektnummer: 976
328 m2
Wohnfläche
300 m2
Grundstück
4
Wohneinheiten
329.000 EUR
Kaufpreis
Objektbeschreibung
Das Grundstück ist mit allen Medien erschlossen. Wesentliche Energieträger für Heizung und Warmwasser sind Erdgas und Strom. Jede Wohneinheit verfügt über eine eigene Gastherme. Aktuell werden monatlich für die 4 Wohneinheiten auf einer Wohnfläche von ca. 328 n² Mieteinnahmen in Höhe von 1.555,00 EUR generiert. Das Mietniveau in Grimma befindet sich in einer Spanne zwischen 4,67 EUR/m² und 6,47 EUR/m², im Mittel bei 5,63 EUR/m². Bei dem Anwesen in der Kreuzstraße liegt der Mietpreis bei 4,70 EUR/m² mitten im Stadtzentrum von Grimma ... Steigerungspotential garantiert.
Die 2,1 Kilometer lange Flutschutzmauer in Grimma ist nach Angaben der Stadt zu etwa 90 Prozent fertiggestellt und wurde im August 2019 eingeweiht. Diese Tatsache und eine Elementarschaden-Versicherung nehmen bei diesem Anwesen die Überschwemmungsmöglichkeit aus der Risikobetrachtung. Im Fazit befindet sich das Wohnhaus in einem gepflegten Gesamtzustand und bietet Mietern und Investoren gleichermaßen einen attraktiven Standort in einer ruhigen Lage in einer der begehrtesten Kommunen im Landkreis Leipzig.
Haben Sie weitere Fragen zu diesem Angebot, dann rufen Sie uns gerne an! Wir freuen uns darauf, diese besondere Immobilie mit Ihnen besichtigen zu dürfen.
❤ lichst
Ihre Maklerinnen
Beschreibung der Lage
Das Wohnhaus liegt im Zentrum der Stadt Grimma in der Kreuzstraße, weniger als 100 m vom Marktplatz entfernt innerhalb einer geschlossenen Bebauung aus Wohn- und Geschäftshäusern. Die große Kreisstadt Grimma gilt als eine der begehrtesten Kommunen im Landkreis Leipzig. Als überregionaler Bildungsstandort bietet Grimma mit seinen zahlreichen Schulen viele Möglichkeiten zur qualifizierten Aus- und Weiterbildung. Immer mehr Menschen schätzen Grimma als kinderfreundliche und zukunftsorientierte Stadt ... das beweisen die aktuellen Zuwanderungsstatistiken. Wo lässt es sich besser leben, als in Grimma ... umgeben von Kulturdenkmalen und geschützten Landschaften, mit einem vielseitigen und weiter entwicklungsfähigen Arbeitsplatzangebot, mit hervorragender Infrastruktur und weltoffenen Bürgern. Familien schätzen vor allem das engmaschige Netz an Betreuungsstätten, Spielplätzen, Schulen, Freizeitangeboten, Vereinen sowie Sozial- und Gesundheitseinrichtungen. Die Altstadt von Grimma und ebenso die Mulde sind in wenigen Minuten fußläufig erreichbar. Mit der Zugverbindung und der Anschlussstelle zur Autobahn 14 ist eine Top Anbindung nach Leipzig und Dresden gegeben. Vom Charme der alten Garnisonsstadt ganz zu schweigen. Für Investoren also genau die richtige Adresse. Die „Perle des Muldentales“ ist eine Bezeichnung, welche Grimma seiner historischen Altstadt verdankt. Alteingesessene Sachsen wissen, dass keine zwanzig Kilometer südöstlich von Leipzig ein kleines Paradies liegt. Nach zahlreichen Eingemeindungen im 20. und 21. Jahrhundert ist sie mittlerweile flächenmäßig die viertgrößte Stadt Sachsens. Das Stadtbild wird von zahlreichen Baudenkmälern aus verschiedenen Epochen geprägt welche der charmanten Stadt einen besonderen historischen Charakter verleihen. Die Gegend, wo die Mulde noch von lieblichen Höhenzügen umgeben ist und sich eine wunderschöne Talaue geschaffen hat, hatte die Menschen schon immer zum Niederlassen gereizt. Über die Jahrhunderte ist hier eine Kulturlandschaft gewachsen, die heute zu großen Teilen unter Schutz steht. Zum Schutz der Stadt wurden nach 2013 vorhandene Gebäudemauern ertüchtigt sowie eine freistehende Hochwasserschutzmauer mit verschließbaren Toranlagen und eine unterirdische Dichtwand als Bohrpfahlwand errichtet.
Details zur Provision
Bei Abschluß des Kaufvertrages zahlt der Käufer an die Firma Nach Hause Immobilien GmbH & Co. KG eine Maklercourtage in Höhe von 5,95 % inkl. der gesetzlichen Mehrwertsteuer des Kaufpreises. Die Provision ist mit dem Zustandekommen des Kaufvertrages (notarieller Vertragsabschluss) verdient und fällig. Die Höhe der Bruttocourtage unterliegt einer Anpassung bei Steuersatzänderung.
Rechtliches
Kontakt aufnehmen
Sie Suchen eine Immobilie oder möchten verkaufen?
Kontaktieren Sie uns!
Nach Hause Immobilien
GmbH & Co. KG
Froschkönigweg 1
04277 Leipzig
Tel. 0341 86721235
Fax 0341 8605967



















